OZUビル赤坂303
ここに注目!福岡市中央区赤坂に位置する「OZUビル赤坂303」は、新しいビジネスの拠点にぴったりの貸事務所です。福岡市営地下鉄空港線「赤坂」駅からなんと徒歩2分という、アクセス抜群の好立地が最大の魅力。通勤・来客ともにストレスフリーな毎日を叶えてくれます。 この度、新築の綺麗な空間で、気持ちよくお仕事を始めてみませんか?広々とした46.53m²の専有面積は、多様なビジネススタイルに対応可能。エアコン完備で、一年を通して快適なオフィス環境が整っています。また、エレベーターも完備しており、お客様や従業員の方々の移動もスムーズです。 周辺には銀行やコンビニ、飲食店、ドラッグストアが徒歩1~2分圏内に充実しており、日々の業務やランチ、急な買い物にも困りません。ビジネスを強力にサポートしてくれる環境が魅力です。 さらに、礼金は0円!初期費用を抑えて、理想のオフィスを手に入れるチャンスです。この素晴らしい環境で、あなたのビジネスを大きく飛躍させましょう!
| 賃料・費用 |
30万1,802円
(+管理費等 なし)
坪単価:約2.1万円/坪
敷274万3,660円礼なし仲30万1,802円
|
|---|---|
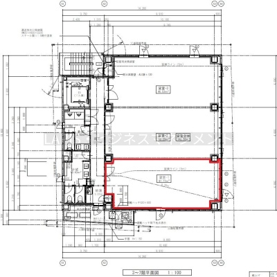
| 専有面積 | 46.53m² (14.07坪) |
| 住所 | 福岡県福岡市中央区赤坂1-13-35 |
| 交通 | 赤坂駅(徒歩2分)|天神駅(徒歩12分)|西鉄福岡(天神)駅(徒歩14分)道順を見る |
| 階/階建 | 3階 / 8階建 |
| 築年月 | 新築(2025年12月) |
| 駐車場 |
なし
|
【WEB面談可】
空室確認、見学、詳細を知りたい方はこちら!
お電話の際は「連合隊の物件」とお伝えください。
情報掲載期限:あと18日(更新日 2026/5/12)
- 物件写真・概要
- 周辺地図
-
【WEB面談可】
空室確認、見学、詳細を知りたい方はこちら!おすすめポイント
- 駅徒歩3分以内
- エアコン付
交通色がついているアイコンをクリックすると、本物件までの道順を見ることができます。
物件概要
所在階/建物の階建 3階 / 地上8階建 主要採光面 構造 鉄骨造 間取り 契約期間 2年間 権利金 住宅保険 引渡し 相談 管理人 取引態様 仲介 物件No 設備・特徴 - 幹線道路沿い
- エレベーター
- エアコン付
備考 主な周辺施設色がついているアイコンをクリックすると、本物件までの道順を見ることができます。
-
ホームページはこちら
福岡県知事 (1) 第20677号
(株)LAPIS・ビジネスマネジメント 【WEB面談可】- 加入団体
- (公社)福岡県宅地建物取引業協会
- 保証協会
- (公社)全国宅地建物取引業保証協会
※連合隊は物件情報の精度向上に努めています:「物件情報に誤りがある」「成約済みである」などお気付きの点がございましたらこちらよりご連絡ください。
写真枚数:17枚
福岡市及び近郊の貸店舗・テナント物件・事務所ならLAPIS・ビジネスマネジメントにおまかせ♪
飲食店・美容室・エステサロン・病院などの貸店舗・テナント物件・事務所をお探しの方へ。非公開の物件等も多数ございますので、まずはお気軽にお問合せください。当社HP:https://lbmlapis.com/forbusinessuse