二丈深江店舗B号
ここに注目!糸島市深江エリアに、広々151.55㎡の貸店舗・事務所が登場いたしました! 特に宿泊施設や民泊でのご利用をご検討の方に、朗報です! JR筑肥線「筑前深江」駅まで徒歩13分。共用駐車場14台完備で、お客様のアクセスもスムーズです。 管理費・共益費は0円と、月々のコストを抑えたいオーナー様にもおすすめです。 鉄骨造りの建物で、エアコン・ガス暖房を完備。すぐに事業をスタートできる環境が整っています。 周辺にはスーパー(徒歩6分)やコンビニ(徒歩10分)があり、生活利便性も良好。観光スポット「鎮懐石八幡宮」も近く、集客の期待も持てます。 新たなビジネスチャンスを掴むこの機会、ぜひ現地でご確認ください。お問い合わせをお待ちしております!
| 賃料・費用 |
30万8,000円
(+管理費等 なし)
坪単価:約6,720円/坪
敷168万円礼84万円仲30万8,000円
保証金:なし
|
|---|---|
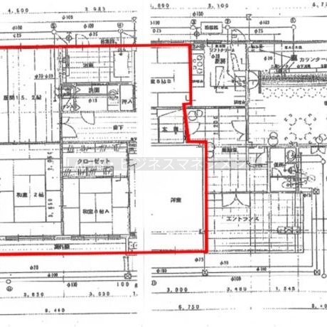
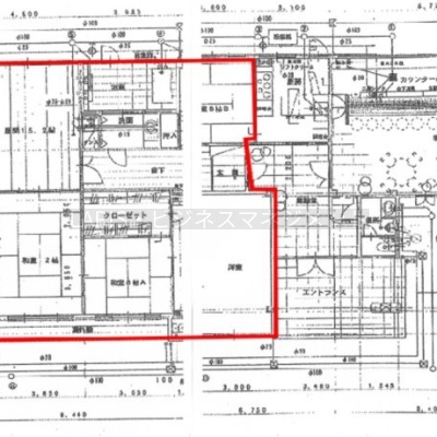
| 専有面積 | 151.55m² (45.84坪) |
| 住所 | 福岡県糸島市二丈深江2129-17 |
| 交通 | 筑前深江駅(徒歩13分)道順を見る |
| 階/階建 | 1階 / 1階建 |
| 築年月 | 築20年(2005年9月) |
| 駐車場 |
あり
共用駐車場:14台 |
【WEB面談可】
空室確認、見学、詳細を知りたい方はこちら!
お電話の際は「連合隊の物件」とお伝えください。
情報掲載期限:あと28日(更新日 2025/12/15)
- 物件写真・概要
- 周辺地図
-
【WEB面談可】
空室確認、見学、詳細を知りたい方はこちら!おすすめポイント
- 駐車場あり
- エアコン付
交通色がついているアイコンをクリックすると、本物件までの道順を見ることができます。
物件概要
所在階/建物の階建 1階 / 地上1階建 主要採光面 構造 鉄骨造 間取り 契約期間 3年間 権利金 なし 住宅保険 出店推奨業種 その他(宿泊施設、民泊) 出店不可業種 引渡し 相談 管理人 取引態様 仲介 物件No 設備・特徴 - エアコン付
- ガス暖房
備考 主な周辺施設色がついているアイコンをクリックすると、本物件までの道順を見ることができます。
-
ホームページはこちら
福岡県知事 (1) 第20677号
(株)LAPIS・ビジネスマネジメント 【WEB面談可】- 加入団体
- (公社)福岡県宅地建物取引業協会
- 保証協会
- (公社)全国宅地建物取引業保証協会
※連合隊は物件情報の精度向上に努めています:「物件情報に誤りがある」「成約済みである」などお気付きの点がございましたらこちらよりご連絡ください。
写真枚数:8枚
福岡市及び近郊の貸店舗・テナント物件・事務所ならLAPIS・ビジネスマネジメントにおまかせ♪
飲食店・美容室・エステサロン・病院などの貸店舗・テナント物件・事務所をお探しの方へ。非公開の物件等も多数ございますので、まずはお気軽にお問合せください。当社HP:https://lbmlapis.com/forbusinessuse