重留四丁目倉庫付事務所
ここに注目!事務所向かいの倉庫も利用可能♪向かいの敷地に車輛10台程度駐車可能です♪
この物件の契約期間は 5年間です。
定期借家物件は、賃貸借契約期間満了後、原則として契約の更新ができない物件です。再契約の可否については不動産会社にお問合せください。
| 賃料・費用 |
55万円
(+管理費等 なし)
坪単価:約1.0万円/坪
敷300万円礼55万円(1ヶ月)仲55万円
保証金:なし
|
|---|---|
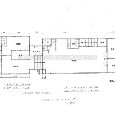
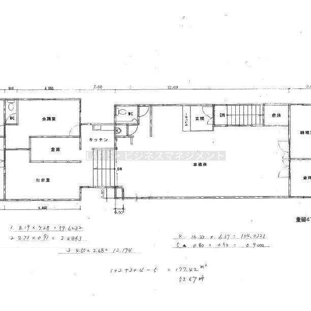
| 専有面積 | 181.21m² (54.81坪) |
| 住所 | 福岡県福岡市早良区重留4-3-5 |
| 交通 | |
| 階/階建 | 2階 / 2階建 |
| 築年月 | 築41年(1984年12月) |
| 駐車場 |
あり 駐車可能台数:10台
向かいの敷地に車輛10台程度、駐車可能 |
【WEB面談可】
空室確認、見学、詳細を知りたい方はこちら!
お電話の際は「連合隊の物件」とお伝えください。
情報掲載期限:あと24日(更新日 2025/12/15)
- 物件写真・概要
- 周辺地図
-
【WEB面談可】
空室確認、見学、詳細を知りたい方はこちら!おすすめポイント
- 駐車2台以上可
- 出店するなら…この業種がおすすめ!
- 飲食全般(重飲食含む)

- 喫茶・カフェ(軽飲食)

- バー・クラブ・スナック

- 小売・物販

- 美容・健康・介護

- 医療

- 教育・スクール

- 事務所

- アミューズメント

※出店不可の業種:飲食全般
物件概要
所在階/建物の階建 2階 / 地上2階建 主要採光面 構造 鉄骨造 間取り 契約期間 定期借家(5年間) 権利金 なし 住宅保険 出店推奨業種 小売・物販、事務所 出店不可業種 飲食全般 引渡し 相談 管理人 取引態様 仲介 物件No 設備・特徴 備考 -
ホームページはこちら
福岡県知事 (1) 第20677号
(株)LAPIS・ビジネスマネジメント 【WEB面談可】- 加入団体
- (公社)福岡県宅地建物取引業協会
- 保証協会
- (公社)全国宅地建物取引業保証協会
※連合隊は物件情報の精度向上に努めています:「物件情報に誤りがある」「成約済みである」などお気付きの点がございましたらこちらよりご連絡ください。
写真枚数:21枚
福岡市及び近郊の貸店舗・テナント物件・事務所ならLAPIS・ビジネスマネジメントにおまかせ♪
飲食店・美容室・エステサロン・病院などの貸店舗・テナント物件・事務所をお探しの方へ。非公開の物件等も多数ございますので、まずはお気軽にお問合せください。当社HP:https://lbmlapis.com/forbusinessuse