大橋駅徒歩1分
ここに注目!西鉄大橋駅まで徒歩1分!ビジネスに非常に便利なロケーションはいかがでしょうか? 駅前にはコンビニ、銀行、ショッピングセンター、スーパー、飲食店などが集まり、日々の業務や休憩時間にも困りません。 エレベーター2基完備で移動もスムーズ。男女別トイレ等、快適なビジネス環境をサポートします。 この魅力的な立地で、新しいビジネスを始めてみませんか? 現地案内やオンライン内見も歓迎いたします。ご相談だけでもお気軽にお問い合わせください!土日祝日のご連絡も承ります。
| 賃料・費用 |
79万2,000円
(+管理費等 -円)
敷432万円礼216万円仲79万2,000円
|
|---|---|
| 専有面積 | |
| 住所 | 福岡県福岡市南区大橋1-12-1 |
| 交通 | 大橋駅(徒歩1分)|高宮駅(徒歩21分)|井尻駅(徒歩24分)|西鉄平尾駅(徒歩35分)|笹原駅(徒歩36分)道順を見る |
| 階/階建 | 4階 |
| 築年月 | 築36年(1989年2月) |
| 駐車場 |
近隣月極駐車場
|
【WEB面談可】
空室確認、見学、詳細を知りたい方はこちら!
お電話の際は「連合隊の物件」とお伝えください。
情報掲載期限:あと6日(更新日 2025/11/21)
- 物件写真・概要
- 周辺地図
-
【WEB面談可】
空室確認、見学、詳細を知りたい方はこちら!おすすめポイント
- 駅徒歩1分以内
- 駅前立地
- 男女別トイレ
- 出店するなら…この業種がおすすめ!
- 飲食全般(重飲食含む)

- 喫茶・カフェ(軽飲食)

- バー・クラブ・スナック

- 小売・物販

- 美容・健康・介護

- 医療

- 教育・スクール

- 事務所

- アミューズメント

交通色がついているアイコンをクリックすると、本物件までの道順を見ることができます。
- 大橋駅西鉄天神大牟田線駅近!徒歩1分(約92m)
- 高宮駅西鉄天神大牟田線徒歩21分(約1.7km)
- 井尻駅西鉄天神大牟田線徒歩24分(約1.9km)
- 西鉄平尾駅西鉄天神大牟田線徒歩35分(約2.8km)
- 笹原駅JR鹿児島本線徒歩36分(約2.9km)
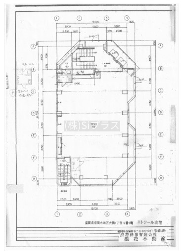
物件概要
所在階/建物の階建 4階 主要採光面 構造 鉄筋コンクリート(RC)造 間取り 契約期間 権利金 住宅保険 出店推奨業種 小売・物販、美容・健康・介護、事務所 出店不可業種 引渡し 相談 管理人 取引態様 仲介 物件No 設備・特徴 - 駅前立地
- エレベーター
- その他インターネット
- 男女別トイレ
備考 お問い合わせは080-9053-6546まで!!電話連絡は土日祝日もOKです! 出れない場合は折り返しいたします。福岡・佐賀県内でテナント・事務所をお探しなら当社にお任せください! 現地案内、オンライン内見大歓迎、ご相談だけでもOKです!お気軽にお問い合わせください (ᵕᴗᵕ) 主な周辺施設色がついているアイコンをクリックすると、本物件までの道順を見ることができます。
-
ホームページはこちら
福岡県知事 (2) 第19154号
(株)Siプラス アパマンショップJR久留米店 【WEB面談可】
※連合隊は物件情報の精度向上に努めています:「物件情報に誤りがある」「成約済みである」などお気付きの点がございましたらこちらよりご連絡ください。
写真枚数:17枚
来店不要!オンライン接客可能です!!お部屋探し・テナント探し、ぜひお任せください!
お問い合わせは電話も含めて365日OKです!!電話に関しては、出れない場合折り返し致します。掲載物件はほんの一部です。まだまだ物件はあります。お気軽にお問い合わせください!