天神4丁目
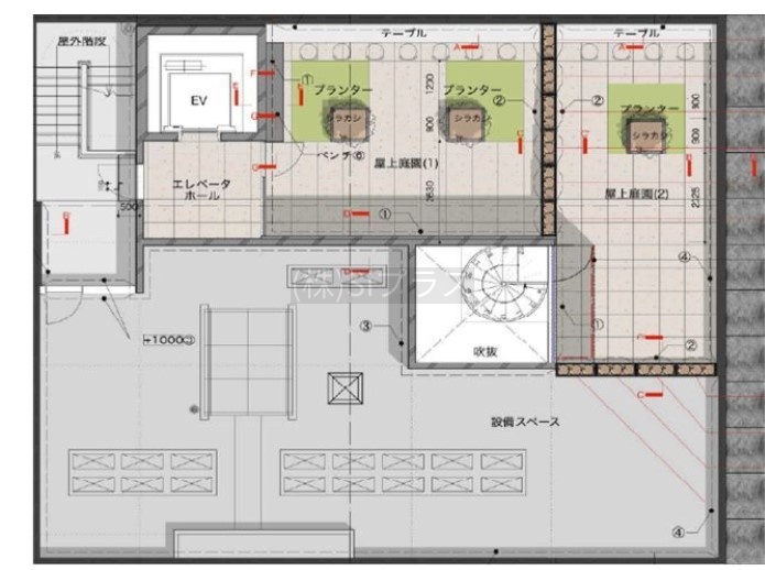
ここに注目!【天神4丁目】オフィスビル!約36㎡の屋上庭園専有利用可! 今賑わっている天神、2024年7月竣工の新築オフィスビルです!天神駅から徒歩7分、西鉄福岡(天神)駅・天神南駅からも徒歩圏内というバツグンのアクセスを誇ります。 最上階の10階部分、専有面積は203.23㎡(約61.48坪)。事務所利用はもちろん、店舗利用も相談可能です(飲食店は不可)。 この物件の最大の魅力は、なんといっても約36㎡の広々とした屋上庭園を専有利用できる点!気分転換のリフレッシュスペースとして、また社員の交流の場として、多様な使い方が可能です。 エアコン、給湯、エレベーター、トイレ、24時間セキュリティ完備で、快適かつ安全にビジネスを展開できます。 福岡の中心地「天神」で、最先端のオフィス空間と特別な屋上庭園を独占しませんか?企業のイメージアップにも繋がり、従業員の満足度も向上すること間違いなしです。
| 賃料・費用 |
154万5,571円
(+管理費等 -円)
坪単価:約2.5万円/坪
敷1,124万520円礼なし仲154万5,571円
|
|---|---|
| 専有面積 | 203.23m² (61.47坪) |
| 住所 | 福岡県福岡市中央区天神4-7-5 |
| 交通 | 天神駅(徒歩7分)|中洲川端駅(徒歩10分)|西鉄福岡(天神)駅(徒歩11分)道順を見る |
| 階/階建 | 10階 / 10階建 |
| 築年月 | 築1年(2024年7月) |
| 駐車場 |
あり (3万800円/台)
|
【WEB面談可】
空室確認、見学、詳細を知りたい方はこちら!
お電話の際は「連合隊の物件」とお伝えください。
情報掲載期限:あと28日(更新日 2025/12/20)
- 物件写真・概要
- 周辺地図
-
【WEB面談可】
空室確認、見学、詳細を知りたい方はこちら!おすすめポイント
- 駐車場あり
- エアコン付
- 24時間セキュリティー
- 出店するなら…この業種がおすすめ!
- 飲食全般(重飲食含む)

- 喫茶・カフェ(軽飲食)

- バー・クラブ・スナック

- 小売・物販

- 美容・健康・介護

- 医療

- 教育・スクール

- 事務所

- アミューズメント

その他…ご相談ください!
※出店不可の業種:その他
交通色がついているアイコンをクリックすると、本物件までの道順を見ることができます。
物件概要
所在階/建物の階建 10階 / 地上10階建 主要採光面 構造 鉄筋コンクリート(RC)造 間取り 契約期間 権利金 住宅保険 お問合せください 出店推奨業種 教育・スクール、事務所、その他(ご相談ください!) 出店不可業種 その他(業種はご相談ください!) 引渡し 相談 管理人 取引態様 仲介 物件No 設備・特徴 - エアコン付
- エレベーター
- その他インターネット
- 24時間セキュリティー
備考 お問い合わせは080-9053-6546まで!!電話連絡は土日祝日もOKです! 出れない場合は折り返しいたします。福岡・佐賀県内でテナント・事務所をお探しなら当社にお任せください! 現地案内、オンライン内見大歓迎、ご相談だけでもOKです!お気軽にお問い合わせください (ᵕᴗᵕ) 主な周辺施設色がついているアイコンをクリックすると、本物件までの道順を見ることができます。
-
ホームページはこちら
福岡県知事 (2) 第19154号
(株)Siプラス アパマンショップJR久留米店 【WEB面談可】
※連合隊は物件情報の精度向上に努めています:「物件情報に誤りがある」「成約済みである」などお気付きの点がございましたらこちらよりご連絡ください。
写真枚数:13枚
来店不要!オンライン接客可能です!!お部屋探し・テナント探し、ぜひお任せください!
お問い合わせは電話も含めて365日OKです!!電話に関しては、出れない場合折り返し致します。掲載物件はほんの一部です。まだまだ物件はあります。お気軽にお問い合わせください!