平尾浄水
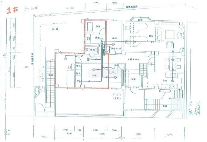
ここに注目!募集は間取図の赤枠内になります(1F:約16坪 2F:約23坪) 室内の荷物は撤去予定。 地下鉄・バス利用可能で、アクセス良好!
この物件は居抜き物件です。
現状の設備が残されたまま取引されるため、初期費用を抑え速やかに事業を開始できるメリットがあります。
| 賃料・費用 |
38万5,000円
(+管理費等 2万2,000円)
坪単価:約9,875円/坪
敷70万円礼77万円(2ヶ月)仲38万5,000円
|
|---|---|
| 専有面積 | 128.92m² (38.99坪) |
| 住所 | 福岡県福岡市中央区平尾浄水町4-26 |
| 交通 | 六本松駅(徒歩24分)|西鉄平尾駅(徒歩18分)|薬院大通駅(徒歩14分)|桜坂駅(徒歩15分)道順を見る |
| 階/階建 | 路面 / 2階建 |
| 築年月 | 築41年(1984年12月) |
| 駐車場 |
近隣月極駐車場
|
【WEB面談可】
空室確認、見学、詳細を知りたい方はこちら!
お電話の際は「連合隊の物件」とお伝えください。
情報掲載期限:あと6日(更新日 2025/11/21)
- 物件写真・概要
- 周辺地図
-
【WEB面談可】
空室確認、見学、詳細を知りたい方はこちら!おすすめポイント
- 路面店
- 複数路線利用可
- エアコン付
- 出店するなら…この業種がおすすめ!
- 飲食全般(重飲食含む)

- 喫茶・カフェ(軽飲食)

- バー・クラブ・スナック

- 小売・物販

- 美容・健康・介護

- 医療

- 教育・スクール

- 事務所

- アミューズメント

その他…業種はご相談ください。
交通色がついているアイコンをクリックすると、本物件までの道順を見ることができます。
- 六本松駅福岡市営地下鉄七隈線徒歩24分(約1.9km)
- 西鉄平尾駅西鉄天神大牟田線徒歩18分(約1.4km)
- 薬院大通駅福岡市営地下鉄七隈線徒歩14分(約1.1km)
- 桜坂駅福岡市営地下鉄七隈線徒歩15分(約1.2km)
物件概要
所在階/建物の階建 1階 / 地上2階建 主要採光面 構造 鉄筋コンクリート(RC)造 間取り バルコニー あり契約期間 権利金 住宅保険 お問合せください 出店推奨業種 教育・スクール、事務所、その他(業種はご相談ください。) 出店不可業種 居抜き情報 [その他(幼稚園)] の居抜き引渡し 相談 管理人 取引態様 仲介 物件No 設備・特徴 - 複数路線利用可
- エアコン付
- その他インターネット
- 路面店
備考 電話連絡は土日祝日もOKです!出れない場合は折り返しいたします。 福岡県・佐賀県内でテナント・事務所をお探しなら当社にお任せください!現地案内、オンライン内見大歓迎です。ご相談だけでもOKです!まずはお気軽にお問い合わせください (ᵕᴗᵕ) 保証会社:オリコフォレントインシュア初回保証料 月額総賃料100%、月額保証料 総賃料1.0% 主な周辺施設色がついているアイコンをクリックすると、本物件までの道順を見ることができます。
-
ホームページはこちら
福岡県知事 (2) 第19154号
(株)Siプラス アパマンショップJR久留米店 【WEB面談可】
※連合隊は物件情報の精度向上に努めています:「物件情報に誤りがある」「成約済みである」などお気付きの点がございましたらこちらよりご連絡ください。
写真枚数:13枚
来店不要!オンライン接客可能です!!お部屋探し・テナント探し、ぜひお任せください!
お問い合わせは電話も含めて365日OKです!!電話に関しては、出れない場合折り返し致します。掲載物件はほんの一部です。まだまだ物件はあります。お気軽にお問い合わせください!