櫛原新築アパート1Fテナント(1年間賃料1万円オフ)
ここに注目!新築アパートの大通り沿い1階テナントです募集開始です☆
| 賃料・費用 |
9万9,000円
(+管理費等 -円)
坪単価:約9,159円/坪
礼9万9,000円(1ヶ月)仲9万9,000円
|
|---|---|
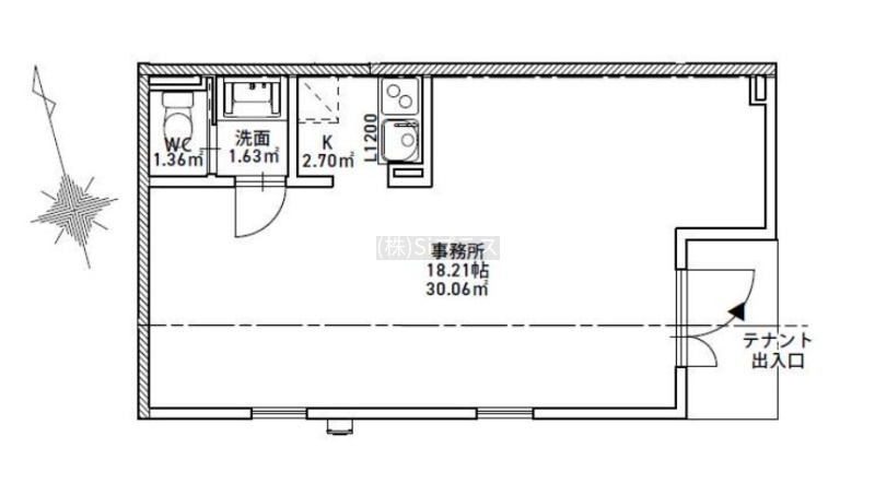
| 専有面積 | 35.76m² (10.81坪) |
| 住所 | 福岡県久留米市櫛原町55-3 |
| 交通 | 久留米駅(徒歩22分)|西鉄久留米駅(徒歩19分)|櫛原駅(徒歩15分)道順を見る |
| 階/階建 | 路面 / 3階建 |
| 築年月 | 新築(2025年8月) |
| 駐車場 |
近隣月極駐車場
|
【WEB面談可】
空室確認、見学、詳細を知りたい方はこちら!
お電話の際は「連合隊の物件」とお伝えください。
情報掲載期限:あと12日(更新日 2026/2/15)
- 物件写真・概要
- 周辺地図
-
【WEB面談可】
空室確認、見学、詳細を知りたい方はこちら!おすすめポイント
- 路面店
- 複数路線利用可
- スケルトン
- 出店するなら…この業種がおすすめ!
- 飲食全般(重飲食含む)

- 喫茶・カフェ(軽飲食)

- バー・クラブ・スナック

- 小売・物販

- 美容・健康・介護

- 医療

- 教育・スクール

- 事務所

- アミューズメント

その他…業種はご相談ください。
交通色がついているアイコンをクリックすると、本物件までの道順を見ることができます。
物件概要
所在階/建物の階建 1階 / 地上3階建 主要採光面 構造 木造 間取り 契約期間 2年間 権利金 住宅保険 お問合せください 出店推奨業種 小売・物販、美容・健康・介護、その他(業種はご相談ください。) 出店不可業種 その他費用 一時金 - 自治会入会金:500円
引渡し 2025年8月下旬 管理人 取引態様 仲介 物件No 設備・特徴 - 複数路線利用可
- その他インターネット
- スケルトン
- 路面店
備考 電話連絡は土日祝日もOKです!出れない場合は折り返しいたします。 福岡県・佐賀県内でテナント・事務所をお探しなら当社にお任せください!現地案内、オンライン内見大歓迎です。ご相談だけでもOKです!まずはお気軽にお問い合わせください (ᵕᴗᵕ) 主な周辺施設色がついているアイコンをクリックすると、本物件までの道順を見ることができます。
-
福岡県知事 (2) 第19154号
(株)Siプラス 【WEB面談可】
※連合隊は物件情報の精度向上に努めています:「物件情報に誤りがある」「成約済みである」などお気付きの点がございましたらこちらよりご連絡ください。
写真枚数:8枚
来店不要!オンライン接客可能です!!お部屋探し・テナント探し、ぜひお任せください!
お問い合わせは電話も含めて365日OKです!!電話に関しては、出れない場合折り返し致します。掲載物件はほんの一部です。まだまだ物件はあります。お気軽にお問い合わせください!