大手門1丁目 3階
ここに注目!【福岡市中央区大手門1丁目】大濠公園駅徒歩6分!無料駐車場付のテナント募集!福岡市中央区大手門1丁目に、新規事業に最適なテナントが登場しました。専有面積39.95m2(約12.08坪)の空間は、事務所に最適です。地下鉄空港線「大濠公園駅」から徒歩6分、赤坂駅も徒歩圏内の好立地です。店舗隣接地に無料駐車場1台分が確保されており、車での来店にも便利です。人通りの多いエリアでビジネスチャンスを広げられます。周辺にはコンビニや郵便局、病院などが充実しており、ビジネス運営に便利な環境です。男女別共用トイレやエアコンも完備しており、すぐに快適な環境で営業を開始できます。築40年の実績あるビルですが、安定した事業運営を始めませんか。現在引き渡しは相談となりますが、ご興味のある方はぜひお問い合わせください。WEB面談も対応しています。空室確認、見学、詳細についてはお気軽にご相談ください。この機会に、利便性の高い立地と駐車場を兼ね備えたこのテナントで、貴社の新しいビジネスを始めてみませんか?
この物件の契約期間は 5年間です。
定期借家物件は、賃貸借契約期間満了後、原則として契約の更新ができない物件です。再契約の可否については不動産会社にお問合せください。
| 賃料・費用 |
15万4,000円
(+管理費等 -円)
坪単価:約1.3万円/坪
敷56万円仲15万4,000円
|
|---|---|
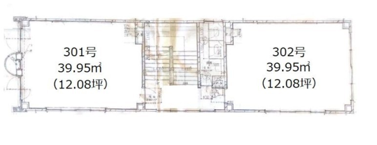
| 専有面積 | 39.95m² (12.08坪) |
| 住所 | 福岡県福岡市中央区大手門1-5-2 |
| 交通 | 大濠公園駅(徒歩6分)|赤坂駅(徒歩9分)|唐人町駅(徒歩16分) |
| 階/階建 | 路面 / 5階建 |
| 築年月 | 築40年(1985年6月) |
| 駐車場 |
あり 駐車可能台数:1台
1台無料! |
【WEB面談可】
空室確認、見学、詳細を知りたい方はこちら!
お電話の際は「連合隊の物件」とお伝えください。
情報掲載期限:あと28日(更新日 2026/4/14)
- 物件写真・概要
- 周辺地図
-
【WEB面談可】
空室確認、見学、詳細を知りたい方はこちら!おすすめポイント
- 路面店
- 駐車場あり
- エアコン付
- 出店するなら…この業種がおすすめ!
- 飲食全般(重飲食含む)

- 喫茶・カフェ(軽飲食)

- バー・クラブ・スナック

- 小売・物販

- 美容・健康・介護

- 医療

- 教育・スクール

- 事務所

- アミューズメント

その他…お問い合わせください!
交通色がついているアイコンをクリックすると、本物件までの道順を見ることができます。
物件概要
所在階/建物の階建 3階 / 地上5階建 主要採光面 南 構造 鉄骨造 間取り 契約期間 定期借家(5年間) 権利金 住宅保険 出店推奨業種 事務所、その他(お問い合わせください!) 出店不可業種 用途地域 - 商業地域
その他費用 毎月の費用 - 定額電気代:1万5,000円
引渡し 相談 管理人 取引態様 仲介 物件No 設備・特徴 - エアコン付
- その他インターネット
- 路面店
- 男女別トイレ(共用部)
備考 電話連絡は土日祝日もOKです!出れない場合は折り返しいたします。 福岡県・佐賀県内でテナント・事務所をお探しなら当社にお任せください!現地案内、オンライン内見大歓迎です。ご相談だけでもOKです!まずはお気軽にお問い合わせください (ᵕᴗᵕ) 主な周辺施設色がついているアイコンをクリックすると、本物件までの道順を見ることができます。
-
福岡県知事 (1) 第21199号
JNT不動産 【WEB面談可】
※連合隊は物件情報の精度向上に努めています:「物件情報に誤りがある」「成約済みである」などお気付きの点がございましたらこちらよりご連絡ください。
写真枚数:11枚
来店不要!現地案内可能です。ご来店は御予約制としております。お部屋探し・テナント探し、ぜひお任せください!
お問い合わせは電話も含めて365日OKです!!電話に関しては、出れない場合折り返し致します。掲載物件はほんの一部です。まだまだ物件はあります。お気軽にお問い合わせください!