(仮称)MGH天神二丁目4F
ここに注目!西鉄福岡(天神)駅至近!2026年8月末竣工の物件です! 近隣は高級時計のブランドショップが立ち並ぶ注目のエリア
この物件の契約期間は 5年間です。
定期借家物件は、賃貸借契約期間満了後、原則として契約の更新ができない物件です。再契約の可否については不動産会社にお問合せください。
| 賃料・費用 |
72万3,338円
(+管理費等 -円)
坪単価:約2.4万円/坪
敷657万5,800円礼なし仲72万3,338円
|
|---|---|
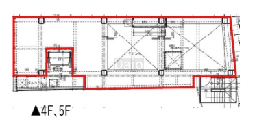
| 専有面積 | 98.91m² (29.92坪) |
| 住所 | 福岡県福岡市中央区天神2丁目48番(地番) |
| 交通 | 西鉄福岡(天神)駅(徒歩3分)|天神南駅(徒歩5分)|天神駅(徒歩7分)道順を見る |
| 階/階建 | 4階 / 8階建 |
| 築年月 | 建築中(2026年8月完成予定) |
| 駐車場 |
なし
|
空室確認、見学、詳細を知りたい方はこちら!
お電話の際は「連合隊の物件」とお伝えください。
情報掲載期限:あと22日(更新日 2026/3/12)
- 物件写真・概要
- 周辺地図
-
空室確認、見学、詳細を知りたい方はこちら!
おすすめポイント
- 駅徒歩3分以内
- 複数路線利用可
- スケルトン
- 出店するなら…この業種がおすすめ!
- 飲食全般(重飲食含む)

- 喫茶・カフェ(軽飲食)

- バー・クラブ・スナック

- 小売・物販

- 美容・健康・介護

- 医療

- 教育・スクール

- 事務所

- アミューズメント

交通色がついているアイコンをクリックすると、本物件までの道順を見ることができます。
物件概要
所在階/建物の階建 4階 / 地上8階建 主要採光面 構造 鉄骨造 間取り 契約期間 定期借家(5年間) 権利金 住宅保険 出店推奨業種 小売・物販、美容・健康・介護、事務所 出店不可業種 引渡し 2026年9月初旬 管理人 取引態様 仲介 物件No 設備・特徴 - 複数路線利用可
- スケルトン
- エレベーター
備考 ※契約期間は要相談。 ※保証会社加入義務あり。 ※飲食は業種により相談可。 ※契約面積:98.91㎡(29.89坪) ※図面・写真等現況と異なる場合は現況を優先いたします。 主な周辺施設色がついているアイコンをクリックすると、本物件までの道順を見ることができます。
-
ホームページはこちら
福岡県知事 (14) 第3389号
(株)大央〒810-0001
福岡県福岡市中央区天神1-11-1
ONE FUKUOKA BLDG.12階TEL:092-712-2303
FAX:092-741-9031
営業時間:10:00~17:00
定休日:毎週 日曜・祝日
- 加入団体
- (公社)福岡県宅地建物取引業協会
- 保証協会
- (公社)全国宅地建物取引業保証協会
※連合隊は物件情報の精度向上に努めています:「物件情報に誤りがある」「成約済みである」などお気付きの点がございましたらこちらよりご連絡ください。
写真枚数:2枚
創業55周年!福岡市のテナント物件は『大央』のお任せください。
天神西通りに社を構え、「天神・大名」を中心に、ビルの管理・仲介をしております。地域密着ならではのネットにない情報や管理会社として、より新鮮な情報をご提案させていただきます。お気軽にお問い合わせ下さい。