フェイズインネクスト山王
ここに注目!山王一丁目きよみ通り沿い物件の1階貸事務所テナント区画!
| 賃料・費用 |
24万4,750円
(+管理費等 -円)
坪単価:約1.1万円/坪
敷178万円礼なし仲24万4,750円
敷引・償却金:66万7,500円
|
|---|---|
| 専有面積 | 73.57m² (22.25坪) |
| 住所 | 福岡県福岡市博多区山王1-17-32 |
| 交通 | 西鉄バス 「山王一丁目」停(徒歩2分)|東比恵駅(徒歩18分)|博多駅(徒歩22分)道順を見る |
| 階/階建 | 1階 / 5階建 |
| 築年月 | 築13年(2013年3月) |
| 駐車場 |
あり (1万6,500円/台)
縦列駐車2台分:月額27,500円 敷金2ヶ月 |
空室確認、見学、詳細を知りたい方はこちら!
お電話の際は「連合隊の物件」とお伝えください。
情報掲載期限:あと11日(更新日 2026/2/16)
- 物件写真・概要
- 周辺地図
-
空室確認、見学、詳細を知りたい方はこちら!
おすすめポイント
- 駐車場あり
交通色がついているアイコンをクリックすると、本物件までの道順を見ることができます。
- 東比恵駅福岡市営地下鉄空港線徒歩18分(約1.4km)
- 博多駅九州新幹線、JR博多南線、福北ゆたか線、福岡市営地下鉄空港線、福岡市営地下鉄七隈線、山陽新幹線、JR鹿児島本線徒歩22分(約1.8km)
- 西鉄バス 「山王一丁目」停徒歩2分
物件概要
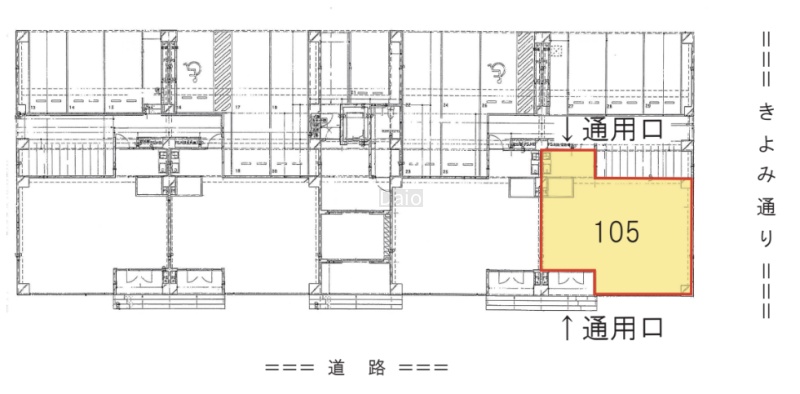
所在階/建物の階建 1階(105) / 地上5階建 主要採光面 構造 鉄筋コンクリート(RC)造 間取り 契約期間 2年間 権利金 住宅保険 引渡し 相談 管理人 取引態様 仲介 物件No 設備・特徴 備考 ・床仕上げ:タイルカーペット ・貸室内にトイレ、ミニキッチン有り ・2F~は賃貸マンション(総戸数32戸) 主な周辺施設色がついているアイコンをクリックすると、本物件までの道順を見ることができます。
-
ホームページはこちら
福岡県知事 (14) 第3389号
(株)大央〒810-0001
福岡県福岡市中央区天神1-11-1
ONE FUKUOKA BLDG.12階TEL:092-712-2303
FAX:092-741-9031
営業時間:10:00~17:00
定休日:毎週 日曜・祝日
- 加入団体
- (公社)福岡県宅地建物取引業協会
- 保証協会
- (公社)全国宅地建物取引業保証協会
※連合隊は物件情報の精度向上に努めています:「物件情報に誤りがある」「成約済みである」などお気付きの点がございましたらこちらよりご連絡ください。
写真枚数:4枚
創業55周年!福岡市のテナント物件は『大央』のお任せください。
天神西通りに社を構え、「天神・大名」を中心に、ビルの管理・仲介をしております。地域密着ならではのネットにない情報や管理会社として、より新鮮な情報をご提案させていただきます。お気軽にお問い合わせ下さい。