GLANZ4F
ここに注目!独立性の高い1フロア1テナント!前面ガラス張りで視認性良好!
| 賃料・費用 |
114万7,520円
(+管理費等 -円)
坪単価:約2.2万円/坪
敷834万5,600円礼なし仲114万7,520円
|
|---|---|
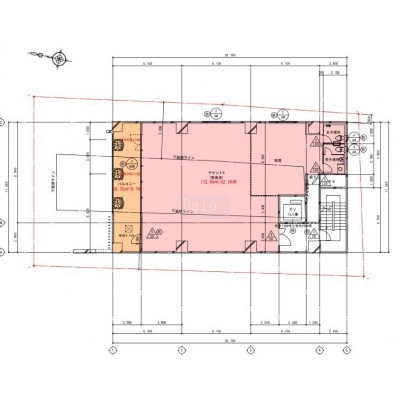
| 専有面積 | 172.46m² (52.16坪) |
| 住所 | 福岡県福岡市中央区大名1-1-32 |
| 交通 | 赤坂駅(徒歩10分)|天神駅(徒歩11分)|西鉄福岡(天神)駅(徒歩6分)|天神南駅(徒歩8分)道順を見る |
| 階/階建 | 4階 / 7階建 |
| 築年月 | 築9年(2017年1月) |
| 駐車場 |
なし
|
空室確認、見学、詳細を知りたい方はこちら!
お電話の際は「連合隊の物件」とお伝えください。
情報掲載期限:あと25日(更新日 2026/2/9)
- 物件写真・概要
- 周辺地図
-
空室確認、見学、詳細を知りたい方はこちら!
- 出店するなら…この業種がおすすめ!
- 飲食全般(重飲食含む)

- 喫茶・カフェ(軽飲食)

- バー・クラブ・スナック

- 小売・物販

- 美容・健康・介護

- 医療

- 教育・スクール

- 事務所

- アミューズメント

交通色がついているアイコンをクリックすると、本物件までの道順を見ることができます。
- 赤坂駅福岡市営地下鉄空港線徒歩10分(約777m)
- 天神駅福岡市営地下鉄空港線徒歩11分(約854m)
- 西鉄福岡(天神)駅西鉄天神大牟田線徒歩6分(約477m)
- 天神南駅福岡市営地下鉄七隈線徒歩8分(約622m)
物件概要
所在階/建物の階建 4階 / 地上7階建 主要採光面 構造 鉄筋コンクリート(RC)造 間取り バルコニー あり契約期間 2年間 更新料/更新手数料 なし 権利金 住宅保険 お問合せください 出店推奨業種 飲食全般(重飲食含む)、喫茶・カフェ(軽飲食)、事務所 出店不可業種 引渡し 相談(2026年1月) 管理人 取引態様 仲介 物件No 設備・特徴 - エレベーター
備考 ゴミ処理代実費 業種:飲食店相談可(におい・煙のすくないもの) 主な周辺施設色がついているアイコンをクリックすると、本物件までの道順を見ることができます。
-
ホームページはこちら
福岡県知事 (14) 第3389号
(株)大央〒810-0001
福岡県福岡市中央区天神1-11-1
ONE FUKUOKA BLDG.12階TEL:092-712-2303
FAX:092-741-9031
営業時間:10:00~17:00
定休日:毎週 日曜・祝日
- 加入団体
- (公社)福岡県宅地建物取引業協会
- 保証協会
- (公社)全国宅地建物取引業保証協会
※連合隊は物件情報の精度向上に努めています:「物件情報に誤りがある」「成約済みである」などお気付きの点がございましたらこちらよりご連絡ください。
写真枚数:4枚
※現テナント改装前
※現テナント改装前
創業55周年!福岡市のテナント物件は『大央』のお任せください。
天神西通りに社を構え、「天神・大名」を中心に、ビルの管理・仲介をしております。地域密着ならではのネットにない情報や管理会社として、より新鮮な情報をご提案させていただきます。お気軽にお問い合わせ下さい。