FPG links DAIMYOⅡ5F
ここに注目!天神西通り至近で店舗にもオフィスにも好立地!
この物件の契約期間は 5年間です。
定期借家物件は、賃貸借契約期間満了後、原則として契約の更新ができない物件です。再契約の可否については不動産会社にお問合せください。
| 賃料・費用 |
176万4,334円
(+管理費等 -円)
坪単価:約2.9万円/坪
敷1,603万9,400円礼なし仲176万4,334円
|
|---|---|
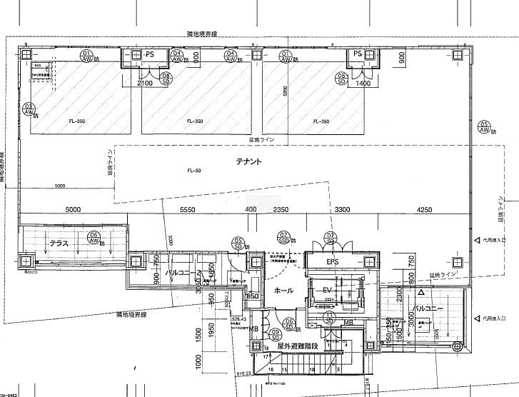
| 専有面積 | 203.91m² (61.68坪) |
| 住所 | 福岡県福岡市中央区大名1-12-60 |
| 交通 | 赤坂駅(徒歩9分)|天神南駅(徒歩9分)|天神駅(徒歩7分)|西鉄福岡(天神)駅(徒歩5分)道順を見る |
| 階/階建 | 5階 / 7階建(地下1階) |
| 築年月 | 築5年(2020年9月) |
| 駐車場 |
なし
|
空室確認、見学、詳細を知りたい方はこちら!
お電話の際は「連合隊の物件」とお伝えください。
情報掲載期限:あと26日(更新日 2026/3/30)
- 物件写真・概要
- 周辺地図
-
空室確認、見学、詳細を知りたい方はこちら!
おすすめポイント
- 駅徒歩5分以内
- スケルトン
- 24時間セキュリティー
- 出店するなら…この業種がおすすめ!
- 飲食全般(重飲食含む)

- 喫茶・カフェ(軽飲食)

- バー・クラブ・スナック

- 小売・物販

- 美容・健康・介護

- 医療

- 教育・スクール

- 事務所

- アミューズメント

※出店不可の業種:重飲食(軽飲食は相談可)
交通色がついているアイコンをクリックすると、本物件までの道順を見ることができます。
- 赤坂駅福岡市営地下鉄空港線徒歩9分(約653m)
- 天神南駅福岡市営地下鉄七隈線徒歩9分(約661m)
- 天神駅福岡市営地下鉄空港線徒歩7分(約559m)
- 西鉄福岡(天神)駅西鉄天神大牟田線徒歩5分(約399m)
物件概要
所在階/建物の階建 5階 / 地上7階 地下1階建 主要採光面 構造 鉄骨鉄筋コンクリート(SRC)造 間取り 契約期間 定期借家(5年間) 権利金 住宅保険 お問合せください 出店推奨業種 喫茶・カフェ(軽飲食)、事務所 出店不可業種 重飲食(軽飲食は相談可) その他費用 その他 - 駐輪場(月額/税込):2,200円
引渡し 期日指定 管理人 取引態様 仲介 物件No 設備・特徴 - エレベーター
- 24時間セキュリティー
- スケルトン
備考 引渡状態:スケルトン ※図面・写真等現況と異なる場合は現況を優先いたします。 主な周辺施設色がついているアイコンをクリックすると、本物件までの道順を見ることができます。
-
ホームページはこちら
福岡県知事 (14) 第3389号
(株)大央〒810-0001
福岡県福岡市中央区天神1-11-1
ONE FUKUOKA BLDG.12階TEL:092-712-2303
FAX:092-741-9031
営業時間:10:00~17:00
定休日:毎週 日曜・祝日
- 加入団体
- (公社)福岡県宅地建物取引業協会
- 保証協会
- (公社)全国宅地建物取引業保証協会
※連合隊は物件情報の精度向上に努めています:「物件情報に誤りがある」「成約済みである」などお気付きの点がございましたらこちらよりご連絡ください。
写真枚数:2枚
創業55周年!福岡市のテナント物件は『大央』のお任せください。
天神西通りに社を構え、「天神・大名」を中心に、ビルの管理・仲介をしております。地域密着ならではのネットにない情報や管理会社として、より新鮮な情報をご提案させていただきます。お気軽にお問い合わせ下さい。