ラシュール・イン大橋Ⅱ
ここに注目!【ご内覧は現地集合で来店不要です】日程調整等はお電話頂くか、メールでのお問い合わせ後にLINE登録されるとスムーズです!追加特典もありますので詳細はお気軽にお問い合わせ下さい♪
| 賃料・費用 |
37万9,500円
(+管理費等 なし)
坪単価:約1.3万円/坪
敷189万7,500円(5ヶ月)礼なし仲41万7,450円
|
|---|---|
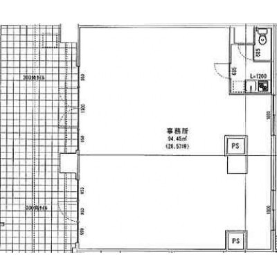
| 専有面積 | 94.45m² (28.57坪) |
| 住所 | 福岡県福岡市南区大橋3丁目31-20 |
| 交通 | 大橋駅(徒歩10分)|井尻駅(徒歩17分)|笹原駅(徒歩23分)|竹下駅(徒歩24分) |
| 階/階建 | 路面 / 11階建 |
| 築年月 | 築1年未満(2026年2月) |
| 駐車場 |
あり (1万3,200円/台)
|
空室確認、見学、詳細を知りたい方はこちら!
お電話の際は「連合隊の物件」とお伝えください。
情報掲載期限:あと29日(更新日 2026/4/15)
- 物件写真・概要
- 周辺地図
-
空室確認、見学、詳細を知りたい方はこちら!
おすすめポイント
- 即入居可
- 路面店
- 複数路線利用可
- 駐車場あり
- エアコン付
交通色がついているアイコンをクリックすると、本物件までの道順を見ることができます。
物件概要
所在階/建物の階建 1階(101) / 地上11階建 主要採光面 構造 鉄筋コンクリート(RC)造 間取り 契約期間 2年間 権利金 住宅保険 出店推奨業種 出店不可業種 その他費用 その他 - 町会費:300円
引渡し 即時 管理人 取引態様 仲介 物件No 99821030 設備・特徴 - エアコン付
- 路面店
- 複数路線利用可
- その他:ガスキッチン・トイレ/バス別・エアコン・エレベーター
備考 店舗 事務所 加入保険については担当者にお問合せ下さい。面積は賃貸人の算出方法によるものとなります。 -
ホームページはこちら
福岡県知事 (1) 第20460号
(株)tsunaguto
※連合隊は物件情報の精度向上に努めています:「物件情報に誤りがある」「成約済みである」などお気付きの点がございましたらこちらよりご連絡ください。
写真枚数:8枚
福岡市で新規開業・事務所移転・居抜売却など店舗物件の事なら当店にお任せください!
株式会社tsunaguto(ツナグト)と申します!当社は店舗事務所物件を専門に扱う、仲介店舗です。新しく開業される方や、増店・移転など、事業用物件をお探しの方はお気軽にお問い合わせ下さい!公式LINEもあります!