MODERN BUREAU 天神WEST
ここに注目!《敷金・礼金0円!大名1丁目エリア!地上13階建新築テナントビル!全42区画テナント募集!》 RC造・地上13階建、《MODERNシリーズ》新築テナントビル誕生!2026年10月完成予定! 1階部分、約41.25㎡(約12.47坪)のスケルトン物件です。 敷金・礼金0円の為、初期費用も抑えられ、その分ご自身の理想の内装工事費にあてる事が可能です。 重飲食店相談可能!スタートアップ・増店・移転等、物件をお探しの方皆様にオススメの物件です! 業種などお気軽にご相談下さい! 弊社は公式LINEも運営しておりますのでこちらをご登録いただければ内覧予約や物件紹介、またご質問に対する回答もスムーズに行う事が出来ます!居抜き募集も受け付けております! ※お客様専用LINEの為、不動産業者のご登録はご遠慮下さい※ ①下記LINEIDまたは名前検索 ⇒LINEID:@500klacf 【モダンプロジェのお部屋さがし西中洲店】 ②友達追加 ③チャット欄にお名前・物件・質問等を送って頂ければ登録完了です。 (※必ず1度お名前フルネームのメッセージをお送り下さい)
【LINE登録】弊社公式LINEからでもお問合せ可能です!LINE追加後、必ずお名前フルネーム・問合せ内容をメッセージにてお送り下さい!※お客様専用LINEの為、不動産業者のご登録はご遠慮下さい※
この物件の契約期間は 2年間です。
定期借家物件は、賃貸借契約期間満了後、原則として契約の更新ができない物件です。再契約の可否については不動産会社にお問合せください。
| 賃料・費用 |
41万2,500円
(+管理費等 2万2,000円)
坪単価:約3.3万円/坪
敷なし礼なし仲41万2,500円
|
|---|---|
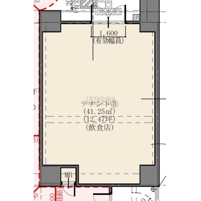
| 専有面積 | 41.25m² (12.47坪) |
| 住所 | 福岡県福岡市中央区大名1丁目3-42付近 |
| 交通 | 西鉄福岡(天神)駅(徒歩8分)|赤坂駅(徒歩8分)|天神南駅(徒歩11分)道順を見る |
| 階/階建 | 1階 / 13階建 |
| 築年月 | 建築中(2026年10月完成予定) |
| 駐車場 |
なし
|
【WEB面談可】
空室確認、見学、詳細を知りたい方はこちら!
お電話の際は「連合隊の物件」とお伝えください。
情報掲載期限:あと28日(更新日 2026/5/16)
- 物件写真・概要
- 周辺地図
-
▼クリックで左の拡大画像が変わります。 すべての写真を拡大
【WEB面談可】
空室確認、見学、詳細を知りたい方はこちら!おすすめポイント
- 複数路線利用可
- スケルトン
- デザイナーズ
- 敷金・礼金0円
- 出店するなら…この業種がおすすめ!
- 飲食全般(重飲食含む)

- 喫茶・カフェ(軽飲食)

- バー・クラブ・スナック

- 小売・物販

- 美容・健康・介護

- 医療

- 教育・スクール

- 事務所

- アミューズメント

交通色がついているアイコンをクリックすると、本物件までの道順を見ることができます。
物件概要
所在階/建物の階建 1階(102) / 地上13階建 主要採光面 構造 鉄筋コンクリート(RC)造 間取り 契約期間 定期借家(2年間) 権利金 住宅保険 お問合せください 出店推奨業種 飲食全般(重飲食含む)、バー・クラブ・スナック、美容・健康・介護 出店不可業種 引渡し 相談(2026年10月完成予定!) 管理人 取引態様 仲介 物件No 設備・特徴 - 複数路線利用可
- エレベーター
- デザイナーズ
- 深夜営業相談可
- スケルトン
備考 ●住所:福岡市中央区大名1丁目3-42付近 ●定期借家契約:2年(再契約型) ●電気ガス水道引込有 ●スケルトン仕様(室内トイレ・共用トイレなし/内装工事が必要な物件です) ●重飲食・カラオケ使用業種は匂い煙防音等徹底的に対策をする前提としての要相談となります ●民泊NG ●2026年10月完成予定(工事状況によって変更あり) ●ご内覧は事前予約制です ●現状を優先とします ※仲介業者様紹介不可 主な周辺施設色がついているアイコンをクリックすると、本物件までの道順を見ることができます。
-
ホームページはこちら
福岡県知事(1) 第20237号
(株)MOST モダンプロジェのお部屋さがし西中洲店 【WEB面談可】〒810-0002
福岡県福岡市中央区西中洲6-14
MKTOWNS西中洲 1-ATEL:092-406-4514
FAX:092-406-4515
営業時間:10:00~19:00
定休日:毎週 日曜・祝日
- 加入団体
- (公社)福岡県宅地建物取引業協会
- 保証協会
- (公社)全国宅地建物取引業保証協会
※連合隊は物件情報の精度向上に努めています:「物件情報に誤りがある」「成約済みである」などお気付きの点がございましたらこちらよりご連絡ください。
写真枚数:6枚
【敷金・礼金0円】大名1丁目エリア!《MODERNシリーズ》全42区画新築テナントビル!テナント募集!
1Fテナント/約41.25㎡(約12.47坪)/スケルトン物件
【敷金・礼金0円】大名1丁目エリア!《MODERNシリーズ》全42区画新築テナントビル!テナント募集!
【敷金・礼金0円】大名1丁目エリア!《MODERNシリーズ》全42区画新築テナントビル!テナント募集!
1Fテナント/約41.25㎡(約12.47坪)/スケルトン物件
1Fテナント/約41.25㎡(約12.47坪)/スケルトン物件
テナント(店舗・事務所)物件をお探しの方は、 《モダンプロジェのお部屋さがし西中洲店》へ! !
モダンプロジェのお部屋さがし西中洲店は福岡市内のテナント・社宅・住居物件を中心に取り扱っております。公式LINEも運営しております。内覧予約・物件紹介、質問回答もスムーズに行えます。是非ご登録下さい。