MODERN BUREAU 店屋町
ここに注目!【敷金・礼金0円!MODERNシリーズ!OAフロアテナント募集】 福岡市営地下鉄空港線【中洲川端駅】まで徒歩約4分。 博多区店屋町エリア《MODERNシリーズ》RC造・2024年5月築・地上9階建テナントビル! 6階部分、使用部分面積約45.54㎡、温水洗浄便座付きトイレ・ミニキッチン・洗面所と設備が揃った、OAフロアです。敷金・礼金0円の為、初期費用も安く抑えられます。 事務所・クリニック・サロン・物販・トレーニング店舗等、業種お気軽にご相談下さい。 弊社は公式LINEも運営しておりますのでこちらをご登録いただければ内覧予約や物件紹介、またご質問に対する回答もスムーズに行う事が出来ます。 居抜き募集も受け付けております! ※お客様専用LINEの為、不動産業者のご登録はご遠慮下さい※ ①下記LINEIDまたは名前検索 ⇒LINEID:@500klacf 【モダンプロジェのお部屋さがし西中洲店】 ②友達追加 ③チャット欄にお名前・物件・質問等を送って頂ければ登録完了です。 ※メッセージを1度送っていただかないと弊社には反映されません
この物件の契約期間は 2年間です。
定期借家物件は、賃貸借契約期間満了後、原則として契約の更新ができない物件です。再契約の可否については不動産会社にお問合せください。
| 賃料・費用 |
19万8,000円
(+管理費等 3万3,000円)
坪単価:約1.4万円/坪
敷なし礼なし仲19万8,000円
保証金:なし/敷引・償却金:なし
|
|---|---|
| 専有面積 | 45.54m² (13.77坪) |
| 住所 | 福岡県福岡市博多区店屋町6-6 |
| 交通 | 櫛田神社前駅(徒歩9分)|呉服町駅(徒歩4分)|中洲川端駅(徒歩4分)道順を見る |
| 階/階建 | 6階 / 9階建 |
| 築年月 | 築1年(2024年5月) |
| 駐車場 |
なし
|
【WEB面談可】
空室確認、見学、詳細を知りたい方はこちら!
お電話の際は「連合隊の物件」とお伝えください。
情報掲載期限:あと27日(更新日 2025/12/13)
- 物件写真・概要
- 周辺地図
-
▼クリックで左の拡大画像が変わります。 すべての写真を拡大
-
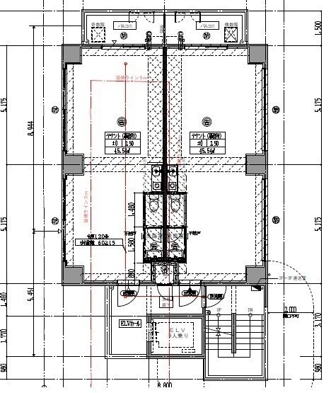
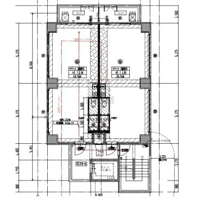
6階部分、使用部分面積約45.54㎡(約13.77坪)、OAフロア
-
《敷金・礼金0円》博多区店屋町エリア、MODERNシリーズテナントビル
-
6階部分、使用部分面積約45.54㎡(約13.77坪)、OAフロア
-
《敷金・礼金0円》博多区店屋町エリア、MODERNシリーズテナントビル
-
《敷金・礼金0円》博多区店屋町エリア、MODERNシリーズテナントビル
-
《敷金・礼金0円》博多区店屋町エリア、MODERNシリーズテナントビル
-
《敷金・礼金0円》博多区店屋町エリア、MODERNシリーズテナントビル
-
6階部分、使用部分面積約45.54㎡(約13.77坪)、OAフロア
-
6階部分、使用部分面積約45.54㎡(約13.77坪)、OAフロア
-
6階部分、使用部分面積約45.54㎡(約13.77坪)、OAフロア
-
ミニキッチンあり
-
IHクッキングヒーターあり
-
独立洗面台
-
温水洗浄便座付きトイレ
-
エアコン1基あり
-
バルコニーあり
【WEB面談可】
空室確認、見学、詳細を知りたい方はこちら!おすすめポイント
- 駅徒歩5分以内
- 複数路線利用可
- デザイナーズ
- エアコン付
- OAフロア
- 24時間セキュリティー
- 敷・礼・保0円
- 出店するなら…この業種がおすすめ!
- 飲食全般(重飲食含む)

- 喫茶・カフェ(軽飲食)

- バー・クラブ・スナック

- 小売・物販

- 美容・健康・介護

- 医療

- 教育・スクール

- 事務所

- アミューズメント

※出店不可の業種:飲食全般
交通色がついているアイコンをクリックすると、本物件までの道順を見ることができます。
物件概要
所在階/建物の階建 6階(602) / 地上9階建 主要採光面 構造 鉄筋コンクリート(RC)造 間取り ワンルーム バルコニー あり契約期間 定期借家(2年間) 権利金 なし 住宅保険 お問合せください 出店推奨業種 美容・健康・介護、医療、事務所 出店不可業種 飲食全般 その他費用 一時金 - 抗菌消毒費用:2万7,500円
引渡し 相談(●契約開始時期:2026年2月中旬以降) 管理人 取引態様 仲介 物件No 設備・特徴 - 複数路線利用可
- デザイナーズ
- OAフロア
- エアコン付
- 24時間セキュリティー
備考 【備考】 ●定期借家契約:2年(再契約型) ●退去予定:2026年1月27日(※内覧は上記日時以降となります) ●室内写真は現状を優先とします ※仲介業者様問合せ窓口:092-260-8878※ (株式会社モダンプロジェ リーシング部) 不動産業者様のご質問はこちらへご連絡お願いします ※当サイトの情報を転載、複製、改変等は禁止いたします※ 主な周辺施設色がついているアイコンをクリックすると、本物件までの道順を見ることができます。
-
-
ホームページはこちら
福岡県知事 (1) 第20237号
(株)MOST モダンプロジェのお部屋さがし西中洲店 【WEB面談可】〒810-0002
福岡県福岡市中央区西中洲6-14
MKTOWNS西中洲 1-ATEL:092-406-4514
FAX:092-406-4515
営業時間:10:00~19:00
定休日:毎週 日曜
- 加入団体
- (公社)福岡県宅地建物取引業協会
- 保証協会
- (公社)全国宅地建物取引業保証協会
※連合隊は物件情報の精度向上に努めています:「物件情報に誤りがある」「成約済みである」などお気付きの点がございましたらこちらよりご連絡ください。
写真枚数:16枚
6階部分、使用部分面積約45.54㎡(約13.77坪)、OAフロア
《敷金・礼金0円》博多区店屋町エリア、MODERNシリーズテナントビル
6階部分、使用部分面積約45.54㎡(約13.77坪)、OAフロア
《敷金・礼金0円》博多区店屋町エリア、MODERNシリーズテナントビル
《敷金・礼金0円》博多区店屋町エリア、MODERNシリーズテナントビル
《敷金・礼金0円》博多区店屋町エリア、MODERNシリーズテナントビル
《敷金・礼金0円》博多区店屋町エリア、MODERNシリーズテナントビル
6階部分、使用部分面積約45.54㎡(約13.77坪)、OAフロア
6階部分、使用部分面積約45.54㎡(約13.77坪)、OAフロア
6階部分、使用部分面積約45.54㎡(約13.77坪)、OAフロア
ミニキッチンあり
IHクッキングヒーターあり
独立洗面台
温水洗浄便座付きトイレ
エアコン1基あり
バルコニーあり
テナント(店舗・事務所)物件をお探しの方は、 《モダンプロジェのお部屋さがし西中洲店》へ! !
モダンプロジェのお部屋さがし西中洲店は福岡市内のテナント・社宅・住居物件を中心に取り扱っております。公式LINEも運営しております。内覧予約・物件紹介、質問回答もスムーズに行えます。是非ご登録下さい。