店舗(区分)|テナント
Tomike Haruyoshi 8bancho
| 賃料・費用 |
19万768円
(+管理費等 -円)
坪単価:約1.9万円/坪
敷86万7,130円礼17万3,426円仲19万768円
|
|---|---|
| 専有面積 | 32.78m² (9.91坪) |
| 住所 | 福岡県福岡市中央区春吉2-7-18 |
| 交通 | 渡辺通駅(徒歩9分)|櫛田神社前駅(徒歩10分)|天神南駅(徒歩10分)|西鉄福岡(天神)駅(徒歩14分)|薬院駅(徒歩14分)道順を見る |
| 階/階建 | 路面 |
| 築年月 | 築1年(2024年12月) |
| 駐車場 |
空室確認、見学、詳細を知りたい方はこちら!
お電話の際は「連合隊の物件」とお伝えください。
092-753-8950
情報掲載期限:あと25日(更新日 2026/2/10)
- 物件写真・概要
- 周辺地図
-
空室確認、見学、詳細を知りたい方はこちら!
おすすめポイント
- 路面店
- 複数路線利用可
- 駅前立地
- 商店街に面す
- スケルトン
- 出店するなら…この業種がおすすめ!
- 飲食全般(重飲食含む)

- 喫茶・カフェ(軽飲食)

- バー・クラブ・スナック

- 小売・物販

- 美容・健康・介護

- 医療

- 教育・スクール

- 事務所

- アミューズメント

交通色がついているアイコンをクリックすると、本物件までの道順を見ることができます。
- 渡辺通駅福岡市営地下鉄七隈線徒歩9分(約704m)
- 櫛田神社前駅福岡市営地下鉄七隈線徒歩10分(約786m)
- 天神南駅福岡市営地下鉄七隈線徒歩10分(約790m)
- 西鉄福岡(天神)駅西鉄天神大牟田線徒歩14分(約1.1km)
- 薬院駅西鉄天神大牟田線、福岡市営地下鉄七隈線徒歩14分(約1.1km)
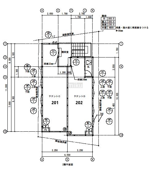
物件概要
所在階/建物の階建 2階 主要採光面 構造 木造 間取り 契約期間 2年間 権利金 住宅保険 出店推奨業種 喫茶・カフェ(軽飲食)、小売・物販、美容・健康・介護 出店不可業種 引渡し 相談 管理人 取引態様 仲介 物件No 設備・特徴 - 複数路線利用可
- 商店街に面す
- 駅前立地
- スケルトン
- 路面店
備考 ☆裏春吉☆天井高2,800mm☆スケルトン渡し☆職種要相談☆ ※入口扉無し、入口シャッターはサービス設置。 ※本物件は『福祉のまちづくり条例整備基準適合物件』です。 ※2テナント契約して1テナントにする工事相談可(賃借人様で要工事)、イメージ図の間取りをご確認ください。 主な周辺施設色がついているアイコンをクリックすると、本物件までの道順を見ることができます。
-
ホームページはこちら
福岡県知事 (1) 第20455号
(株)miku不動産
※連合隊は物件情報の精度向上に努めています:「物件情報に誤りがある」「成約済みである」などお気付きの点がございましたらこちらよりご連絡ください。
写真枚数:20枚
"弊社は福岡を拠点に置く、株式会社miku不動産です。
miku不動産では安心して賃貸を借りられる、安心して売買をできる。安心して管理を任せられる。を、モットーに業界歴が長い不動産のプロがお客様をサポートいたします。