店舗・事務所(区分)|テナント
東洋マンション大名
| 賃料・費用 |
22万円
(+管理費等 -円)
坪単価:約9,303円/坪
敷20万円礼40万円仲22万円
敷引・償却金:20万円
|
|---|---|
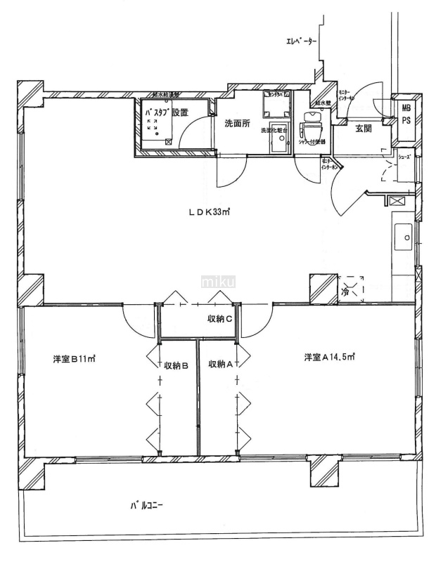
| 専有面積 | 78.19m² (23.65坪) |
| 住所 | 福岡県福岡市中央区大名2-1-43 |
| 交通 | 赤坂駅(徒歩7分)|西鉄福岡(天神)駅(徒歩7分)|天神駅(徒歩8分)|天神南駅(徒歩10分)|薬院駅(徒歩16分)道順を見る |
| 階/階建 | 6階 |
| 築年月 | 築46年(1979年5月) |
| 駐車場 |
空室確認、見学、詳細を知りたい方はこちら!
お電話の際は「連合隊の物件」とお伝えください。
092-753-8950
情報掲載期限:あと2日(更新日 2025/11/9)
- 物件写真・概要
- 周辺地図
-
空室確認、見学、詳細を知りたい方はこちら!
おすすめポイント
- 複数路線利用可
- 駅前立地
- 商店街に面す
- デザイナーズ
- エアコン付
- 24時間セキュリティー
- 出店するなら…この業種がおすすめ!
- 飲食全般(重飲食含む)

- 喫茶・カフェ(軽飲食)

- バー・クラブ・スナック

- 小売・物販

- 美容・健康・介護

- 医療

- 教育・スクール

- 事務所

- アミューズメント

※出店不可の業種:飲食全般
交通色がついているアイコンをクリックすると、本物件までの道順を見ることができます。
- 赤坂駅福岡市営地下鉄空港線徒歩7分(約481m)
- 西鉄福岡(天神)駅西鉄天神大牟田線徒歩7分(約500m)
- 天神駅福岡市営地下鉄空港線徒歩8分(約599m)
- 天神南駅福岡市営地下鉄七隈線徒歩10分(約762m)
- 薬院駅西鉄天神大牟田線、福岡市営地下鉄七隈線徒歩16分(約1.3km)
物件概要
所在階/建物の階建 6階 主要採光面 北 構造 鉄骨鉄筋コンクリート(SRC)造 間取り 2LDK 契約期間 2年間 権利金 住宅保険 出店推奨業種 小売・物販、美容・健康・介護、事務所 出店不可業種 飲食全般 引渡し 相談 管理人 取引態様 仲介 物件No 設備・特徴 - 複数路線利用可
- 駅前立地
- 商店街に面す
- エレベーター
- デザイナーズ
- エアコン付
- 24時間セキュリティー
備考 エステ・ネイル・事務所 旧大名小跡地正面に立地!岩田屋徒歩1分! 主な周辺施設色がついているアイコンをクリックすると、本物件までの道順を見ることができます。
-
ホームページはこちら
福岡県知事 (1) 第20455号
(株)miku不動産
※連合隊は物件情報の精度向上に努めています:「物件情報に誤りがある」「成約済みである」などお気付きの点がございましたらこちらよりご連絡ください。
写真枚数:6枚
"弊社は福岡を拠点に置く、株式会社miku不動産です。
miku不動産では安心して賃貸を借りられる、安心して売買をできる。安心して管理を任せられる。を、モットーに業界歴が長い不動産のプロがお客様をサポートいたします。