BLAROCK.TK2(ブラロック.ティーケーツー)
ここに注目! ☆個人・法人問わず出店可能です♪ ☆1~3階及び共用部等のリノベーション完了しました♪ スケルトン渡し、未入居、リノベーション 24時間セキュリティ、防犯カメラ 一方道路 (北西、公道、位置指定無、舗装有) 用途地域 商業
| 賃料・費用 |
19万8,000円
(+管理費等 5,500円)
坪単価:約1.1万円/坪
敷18万円礼36万円仲19万8,000円
|
|---|---|
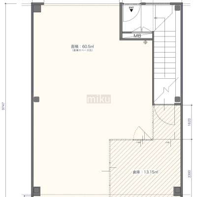
| 専有面積 | 60.5m² (18.3坪) |
| 住所 | 福岡県福岡市中央区清川2-19-29 |
| 交通 | 渡辺通駅(徒歩9分)|薬院駅(徒歩12分)|西鉄平尾駅(徒歩15分)|薬院大通駅(徒歩19分)道順を見る |
| 階/階建 | 路面 |
| 築年月 | 築38年(1987年6月) |
| 駐車場 |
空室確認、見学、詳細を知りたい方はこちら!
お電話の際は「連合隊の物件」とお伝えください。
情報掲載期限:あと26日(更新日 2026/2/10)
- 物件写真・概要
- 周辺地図
-
空室確認、見学、詳細を知りたい方はこちら!
おすすめポイント
- 路面店
- 商店街に面す
- スケルトン
- デザイナーズ
- 出店するなら…この業種がおすすめ!
- 飲食全般(重飲食含む)

- 喫茶・カフェ(軽飲食)

- バー・クラブ・スナック

- 小売・物販

- 美容・健康・介護

- 医療

- 教育・スクール

- 事務所

- アミューズメント

交通色がついているアイコンをクリックすると、本物件までの道順を見ることができます。
- 渡辺通駅福岡市営地下鉄七隈線徒歩9分(約674m)
- 薬院駅西鉄天神大牟田線、福岡市営地下鉄七隈線徒歩12分(約913m)
- 西鉄平尾駅西鉄天神大牟田線徒歩15分(約1.2km)
- 薬院大通駅福岡市営地下鉄七隈線徒歩19分(約1.5km)
物件概要
所在階/建物の階建 1階 主要採光面 構造 鉄骨造 間取り 契約期間 2年間 権利金 住宅保険 出店推奨業種 喫茶・カフェ(軽飲食)、小売・物販、美容・健康・介護 出店不可業種 その他費用 毎月の費用 - 機械警備費:1万1,000円
引渡し 相談 管理人 取引態様 仲介 物件No 設備・特徴 - 商店街に面す
- デザイナーズ
- スケルトン
- 路面店
備考 主な周辺施設色がついているアイコンをクリックすると、本物件までの道順を見ることができます。
-
ホームページはこちら
福岡県知事 (1) 第20455号
(株)miku不動産
※連合隊は物件情報の精度向上に努めています:「物件情報に誤りがある」「成約済みである」などお気付きの点がございましたらこちらよりご連絡ください。
写真枚数:3枚
"弊社は福岡を拠点に置く、株式会社miku不動産です。
miku不動産では安心して賃貸を借りられる、安心して売買をできる。安心して管理を任せられる。を、モットーに業界歴が長い不動産のプロがお客様をサポートいたします。