城西アパート
ここに注目!建築家デザイン。一棟リノベーション。アトリエやサロン、カフェバー、レストランバーなどに。シェアや転貸(レンタルスペース)として貸し出すことも可能。屋上も利用できます。
この物件の契約期間は 10年間です。
定期借家物件は、賃貸借契約期間満了後、原則として契約の更新ができない物件です。再契約の可否については不動産会社にお問合せください。
| 賃料・費用 |
13万2,000円
(+管理費等 5,500円)
坪単価:約1.1万円/坪
敷なし礼36万円仲13万2,000円
|
|---|---|
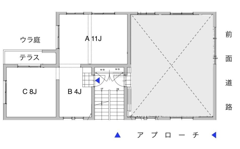
| 専有面積 | 39.6m² (11.97坪) |
| 住所 | 福岡県福岡市早良区城西2-2-28 |
| 交通 | 西新駅(徒歩10分)|別府駅(徒歩13分)|六本松駅(徒歩19分)|藤崎駅(徒歩22分)|大濠公園駅(徒歩30分)道順を見る |
| 階/階建 | 路面 / 4階建 |
| 築年月 | 築52年(1973年6月) |
| 駐車場 |
空き待ち
|
空室確認、見学、詳細を知りたい方はこちら!
お電話の際は「連合隊の物件」とお伝えください。
情報掲載期限:あと18日(更新日 2025/12/13)
- 物件写真・概要
- 周辺地図
-
空室確認、見学、詳細を知りたい方はこちら!
おすすめポイント
- 路面店
- 複数路線利用可
- 駅前立地
- スケルトン
- デザイナーズ
- 出店するなら…この業種がおすすめ!
- 飲食全般(重飲食含む)

- 喫茶・カフェ(軽飲食)

- バー・クラブ・スナック

- 小売・物販

- 美容・健康・介護

- 医療

- 教育・スクール

- 事務所

- アミューズメント

交通色がついているアイコンをクリックすると、本物件までの道順を見ることができます。
- 西新駅福岡市営地下鉄空港線徒歩10分(約775m)
- 別府駅福岡市営地下鉄七隈線徒歩13分(約1.1km)
- 六本松駅福岡市営地下鉄七隈線徒歩19分(約1.5km)
- 藤崎駅福岡市営地下鉄空港線徒歩22分(約1.8km)
- 大濠公園駅福岡市営地下鉄空港線徒歩30分(約2.4km)
物件概要
所在階/建物の階建 1階 / 地上4階建 主要採光面 構造 鉄筋コンクリート(RC)造 間取り 2K 契約期間 定期借家(10年間) 権利金 住宅保険 出店推奨業種 飲食全般(重飲食含む)、バー・クラブ・スナック、美容・健康・介護 出店不可業種 引渡し 相談 管理人 取引態様 仲介 物件No 設備・特徴 - 複数路線利用可
- 駅前立地
- スケルトン
- 路面店
- デザイナーズ
備考 主な周辺施設色がついているアイコンをクリックすると、本物件までの道順を見ることができます。
-
ホームページはこちら
福岡県知事 (1) 第20455号
(株)miku不動産
※連合隊は物件情報の精度向上に努めています:「物件情報に誤りがある」「成約済みである」などお気付きの点がございましたらこちらよりご連絡ください。
写真枚数:10枚
"弊社は福岡を拠点に置く、株式会社miku不動産です。
miku不動産では安心して賃貸を借りられる、安心して売買をできる。安心して管理を任せられる。を、モットーに業界歴が長い不動産のプロがお客様をサポートいたします。