ここに注目!福岡県内で店舗・事務所・倉庫などをお探し中の方は一度ご相談ください。HPにも多数の物件が御座います。内覧は、現地待ち合わせ可能です。移転や増設、新規開業等、しっかりとご対応をさせていただきます。
| 賃料・費用 |
34万5,840円
(+管理費等 5,500円)
坪単価:約1.8万円/坪
敷125万7,600円礼34万5,840円(1ヶ月)仲34万5,840円
|
|---|---|
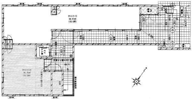
| 専有面積 | 64.97m² (19.65坪) |
| 住所 | 福岡県福岡市中央区高砂2丁目14-3 |
| 交通 | 西鉄平尾駅(徒歩9分)|薬院駅(徒歩13分)|渡辺通駅(徒歩13分) |
| 階/階建 | 1階 / 3階建 |
| 築年月 | 築1年(2024年10月) |
| 駐車場 |
なし
|
空室確認、見学、詳細を知りたい方はこちら!
お電話の際は「連合隊の物件」とお伝えください。
情報掲載期限:あと29日(更新日 2026/4/15)
- 物件写真・概要
- 周辺地図
-
空室確認、見学、詳細を知りたい方はこちら!
おすすめポイント
- 即入居可
- 複数路線利用可
- スケルトン
交通色がついているアイコンをクリックすると、本物件までの道順を見ることができます。
物件概要
所在階/建物の階建 1階(101) / 地上3階建 主要採光面 構造 鉄筋コンクリート(RC)造 間取り 契約期間 2年間 権利金 住宅保険 出店推奨業種 出店不可業種 その他費用 その他 - テナント名入れ代:4万4,000円
引渡し 即時 管理人 取引態様 仲介 物件No 設備・特徴 - 複数路線利用可
- スケルトン
- その他:LPガス・防犯カメラ・エレベーター
備考 店舗 ・水町費実費・保険はテナント側で加入(賠償責任特約付きの保険)・本物件並びに本物件敷地内は、健康増進法一部改正により全面禁煙(加熱式煙草も含む)・テナント名入れは弊社指定業者で指定箇所(テナント名を入れる看板)に入れます。※建物左側の壁、1F EV横の2ヶ所のため44,000円税込・竣工前の図面ではTVアンテナ有、回線のみパイプスペースまで引込みですが、現状は地上波の受信レベルが低いためTV受信設備無しとなりました。※保証人、保証会社、収納代行必須(法人含む)・退去予告3ヶ月以上前、違約 主な周辺施設色がついているアイコンをクリックすると、本物件までの道順を見ることができます。
-
ホームページはこちら
福岡県知事 (1) 第19757号
(株)HETE総合不動産
※連合隊は物件情報の精度向上に努めています:「物件情報に誤りがある」「成約済みである」などお気付きの点がございましたらこちらよりご連絡ください。
写真枚数:14枚
店舗・事務所のお探しは弊社にお任せください!福岡県内どちらの物件もご紹介可能です♪♪
福岡で不動産のご相談はHETE総合不動産へお任せください!経験豊富なスタッフが物件の引き渡しまでしっかりサポートしていきます♪店舗の内装に関してもご希望に沿ったプランニングが出来ますので是非ご相談下さい!