ここに注目!福岡県内で店舗・事務所・倉庫などをお探し中の方は一度ご相談ください。HPにも多数の物件が御座います。内覧は、現地待ち合わせ可能です。移転や増設、新規開業等、しっかりとご対応をさせていただきます。
| 賃料・費用 |
21万8,042円
(+管理費等 3万8,478円)
坪単価:約1.9万円/坪
敷118万9,320円仲21万8,042円
|
|---|---|
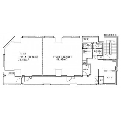
| 専有面積 | 38.56m² (11.66坪) |
| 住所 | 福岡県福岡市中央区天神 (詳細非公開) |
| 交通 | 天神駅(徒歩6分)|西鉄福岡(天神)駅(徒歩9分)|天神南駅(徒歩14分) |
| 階/階建 | 2階 / 8階建 |
| 築年月 | 建築中(2026年8月完成予定) |
| 駐車場 |
なし
|
空室確認、見学、詳細を知りたい方はこちら!
お電話の際は「連合隊の物件」とお伝えください。
情報掲載期限:あと29日(更新日 2026/4/15)
- 物件写真・概要
- 周辺地図
-
空室確認、見学、詳細を知りたい方はこちら!
おすすめポイント
- 複数路線利用可
- 男女別トイレ
- OAフロア
- 24時間セキュリティー
交通
- 天神駅福岡市営地下鉄空港線徒歩6分
- 西鉄福岡(天神)駅西鉄天神大牟田線徒歩9分
- 天神南駅福岡市営地下鉄七隈線徒歩14分
物件概要
所在階/建物の階建 2階(201) / 地上8階建 主要採光面 構造 鉄筋コンクリート(RC)造 間取り 契約期間 2年間 権利金 住宅保険 引渡し 相談 管理人 取引態様 仲介 物件No 設備・特徴 - 複数路線利用可
- 24時間セキュリティー
- 男女別トイレ
- OAフロア
- 個別空調
- その他:防犯カメラ・エレベーター
備考 事務所 飲食店不可 OAフロア 主な周辺施設
- 福岡県私立幼稚園振興協会福岡部会約462m(徒歩6分)
- 社団法人福岡県私立幼稚園振興協会約462m(徒歩6分)
- 福岡県私立幼稚園退職金基金社団約462m(徒歩6分)
- ニチイキッズ天神保育園約158m(徒歩2分)
- 舞鶴保育所約364m(徒歩5分)
- 天神ちとせ保育園約385m(徒歩5分)
- NHK学園高等学校まなびや福岡約145m(徒歩2分)
-
ホームページはこちら
福岡県知事 (1) 第19757号
(株)HETE総合不動産
※連合隊は物件情報の精度向上に努めています:「物件情報に誤りがある」「成約済みである」などお気付きの点がございましたらこちらよりご連絡ください。
写真枚数:2枚
店舗・事務所のお探しは弊社にお任せください!福岡県内どちらの物件もご紹介可能です♪♪
福岡で不動産のご相談はHETE総合不動産へお任せください!経験豊富なスタッフが物件の引き渡しまでしっかりサポートしていきます♪店舗の内装に関してもご希望に沿ったプランニングが出来ますので是非ご相談下さい!