ここに注目!福岡県内で店舗・事務所・倉庫などをお探し中の方は一度ご相談ください。HPにも多数の物件が御座います。内覧は、現地待ち合わせ可能です。移転や増設、新規開業等、しっかりとご対応をさせていただきます。
| 賃料・費用 |
23万1,000円
(+管理費等 1万1,000円)
坪単価:約9,081円/坪
敷105万円礼23万1,000円(1ヶ月)仲23万1,000円
|
|---|---|
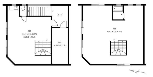
| 専有面積 | 84.12m² (25.44坪) |
| 住所 | 福岡県福岡市早良区西新 (詳細非公開) |
| 交通 | 西新駅(徒歩6分)|藤崎駅(徒歩10分)|室見駅(徒歩20分) |
| 階/階建 | 2階 / 3階建 |
| 築年月 | 築48年(1978年1月) |
| 駐車場 |
なし
|
空室確認、見学、詳細を知りたい方はこちら!
お電話の際は「連合隊の物件」とお伝えください。
情報掲載期限:あと24日(更新日 2026/4/7)
- 物件写真・概要
- 周辺地図
-
空室確認、見学、詳細を知りたい方はこちら!
おすすめポイント
- 即入居可
交通
- 西新駅福岡市営地下鉄空港線徒歩6分
- 藤崎駅福岡市営地下鉄空港線徒歩10分(約800m)
- 室見駅福岡市営地下鉄空港線徒歩20分(約1.6km)
物件概要
所在階/建物の階建 2階(201) / 地上3階建 主要採光面 構造 鉄骨造 間取り 契約期間 10年間 権利金 住宅保険 出店推奨業種 出店不可業種 引渡し 即時 管理人 取引態様 仲介 物件No 設備・特徴 - その他:都市ガス・トイレ/バス別
備考 町費 200円(月額) 店舗・事務所 メゾネットタイプ。2階トイレ,ミニキッチン、3階ユニットバス付。軽飲食要相談。定借10年、再契約型。*図面・写真が現況と相違している場合、現況を優先とします。 主な周辺施設
- 西新カトリック幼稚園約705m(徒歩9分)
- 第二高取保育園約203m(徒歩3分)
- ひなたの風保育園約556m(徒歩7分)
- 西新こども保育園約496m(徒歩7分)
- 福岡県立修猷館高校約551m(徒歩7分)
- 福岡医療専門学校約361m(徒歩5分)
- 私立西南学院大学約557m(徒歩7分)
- 西南学院本部事務部門 学院本部夜間・休日専用約554m(徒歩7分)
- 西南学院本部事務部門 大学事務部門 学内関係業者西南学院大学生活協同組約620m(徒歩8分)
-
ホームページはこちら
福岡県知事 (1) 第19757号
(株)HETE総合不動産
※連合隊は物件情報の精度向上に努めています:「物件情報に誤りがある」「成約済みである」などお気付きの点がございましたらこちらよりご連絡ください。
写真枚数:10枚
店舗・事務所のお探しは弊社にお任せください!福岡県内どちらの物件もご紹介可能です♪♪
福岡で不動産のご相談はHETE総合不動産へお任せください!経験豊富なスタッフが物件の引き渡しまでしっかりサポートしていきます♪店舗の内装に関してもご希望に沿ったプランニングが出来ますので是非ご相談下さい!