九勧呉服町ビル
ここに注目!福岡県内で店舗・事務所・倉庫などをお探し中の方は一度ご相談ください。HPにも多数の物件が御座います。内覧は、現地待ち合わせ可能です。移転や増設、新規開業等、しっかりとご対応をさせていただきます。
| 賃料・費用 |
47万3,000円
(+管理費等 13万2,440円)
坪単価:約1.4万円/坪
敷516万円礼なし仲47万3,000円
保証金:なし
|
|---|---|
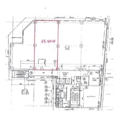
| 専有面積 | 113.73m² (34.4坪) |
| 住所 | 福岡県福岡市博多区店屋町8-24 |
| 交通 | 呉服町駅(徒歩1分)|中洲川端駅(徒歩7分) |
| 階/階建 | 7階 / 8階建 |
| 築年月 | 築43年(1982年7月) |
| 駐車場 |
あり (2万7,500円/台)
|
空室確認、見学、詳細を知りたい方はこちら!
お電話の際は「連合隊の物件」とお伝えください。
情報掲載期限:あと28日(更新日 2026/5/30)
- 物件写真・概要
- 周辺地図
-
空室確認、見学、詳細を知りたい方はこちら!
おすすめポイント
- 駅徒歩1分以内
- 複数路線利用可
- 駐車場あり
交通色がついているアイコンをクリックすると、本物件までの道順を見ることができます。
物件概要
所在階/建物の階建 7階(7階) / 地上8階建 主要採光面 構造 鉄骨鉄筋コンクリート(SRC)造 間取り 契約期間 3年間 権利金 住宅保険 引渡し 相談 管理人 取引態様 仲介 物件No 設備・特徴 - 複数路線利用可
- その他:公共下水・上下水道・電気
備考 呉服駅から徒歩1分の事務所です。 お問合せ、お待ちしております。 主な周辺施設色がついているアイコンをクリックすると、本物件までの道順を見ることができます。
-
ホームページはこちら
福岡県知事 (1) 第19757号
(株)HETE総合不動産
※連合隊は物件情報の精度向上に努めています:「物件情報に誤りがある」「成約済みである」などお気付きの点がございましたらこちらよりご連絡ください。
写真枚数:2枚
店舗・事務所のお探しは弊社にお任せください!福岡県内どちらの物件もご紹介可能です♪♪
福岡で不動産のご相談はHETE総合不動産へお任せください!経験豊富なスタッフが物件の引き渡しまでしっかりサポートしていきます♪店舗の内装に関してもご希望に沿ったプランニングが出来ますので是非ご相談下さい!