博多駅東QRビル
ここに注目!福岡県内で店舗・事務所・倉庫などをお探し中の方は一度ご相談ください。HPにも多数の物件が御座います。内覧は、現地待ち合わせ可能です。
| 賃料・費用 |
34万4,124円
(+管理費等 -円)
坪単価:約1.3万円/坪
敷250万2,720円礼なし仲34万4,124円
保証金:なし
|
|---|---|
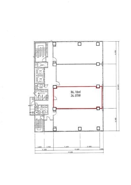
| 専有面積 | 86.18m² (26.06坪) |
| 住所 | 福岡県福岡市博多区博多駅東3丁目12 |
| 交通 | 東比恵駅(徒歩8分)|博多駅(徒歩14分) |
| 階/階建 | 9階 / 10階建 |
| 築年月 | 築34年(1991年9月) |
| 駐車場 |
空き待ち (2万2,000円/台)
|
空室確認、見学、詳細を知りたい方はこちら!
お電話の際は「連合隊の物件」とお伝えください。
情報掲載期限:あと30日(更新日 2026/2/14)
- 物件写真・概要
- 周辺地図
-
空室確認、見学、詳細を知りたい方はこちら!
おすすめポイント
- 即入居可
- 複数路線利用可
- エアコン付
- 24時間セキュリティー
交通色がついているアイコンをクリックすると、本物件までの道順を見ることができます。
物件概要
所在階/建物の階建 9階(9) / 地上10階建 主要採光面 構造 鉄骨鉄筋コンクリート(SRC)造 間取り 契約期間 2年間 権利金 住宅保険 引渡し 即時 管理人 取引態様 仲介 物件No 設備・特徴 - エアコン付
- 複数路線利用可
- 24時間セキュリティー
- ビルトインエアコン
- 個別空調
- その他:公共下水・エアコン・エレベーター・駐輪場・上下水道・電気
備考 事務所 福岡市空港線 東比恵 徒歩8分 主な周辺施設色がついているアイコンをクリックすると、本物件までの道順を見ることができます。
-
ホームページはこちら
福岡県知事 (1) 第19757号
(株)HETE総合不動産
※連合隊は物件情報の精度向上に努めています:「物件情報に誤りがある」「成約済みである」などお気付きの点がございましたらこちらよりご連絡ください。
写真枚数:7枚
店舗・事務所のお探しは弊社にお任せください!福岡県内どちらの物件もご紹介可能です♪♪
福岡で不動産のご相談はHETE総合不動産へお任せください!経験豊富なスタッフが物件の引き渡しまでしっかりサポートしていきます♪店舗の内装に関してもご希望に沿ったプランニングが出来ますので是非ご相談下さい!