セントベーネビル
ここに注目!福岡市内で店舗・事務所・倉庫などをお探し中の方は一度ご相談ください。HPにも多数の物件が御座います。内覧は、現地待ち合わせ可能です。
| 賃料・費用 |
52万2,951円
(+管理費等 -円)
坪単価:約1.4万円/坪
敷142万6,230円礼なし仲52万2,951円
保証金:なし
|
|---|---|
| 専有面積 | 120.89m² (36.56坪) |
| 住所 | 福岡県福岡市中央区大名1丁目9-52 |
| 交通 | 赤坂駅(徒歩5分)|西鉄福岡(天神)駅(徒歩10分)|天神駅(徒歩11分) |
| 階/階建 | 7階 / 8階建 |
| 築年月 | 築19年(2006年3月) |
| 駐車場 |
空室確認、見学、詳細を知りたい方はこちら!
お電話の際は「連合隊の物件」とお伝えください。
情報掲載期限:あと25日(更新日 2025/12/3)
- 物件写真・概要
- 周辺地図
-
空室確認、見学、詳細を知りたい方はこちら!
おすすめポイント
- 駅徒歩5分以内
- 複数路線利用可
交通色がついているアイコンをクリックすると、本物件までの道順を見ることができます。
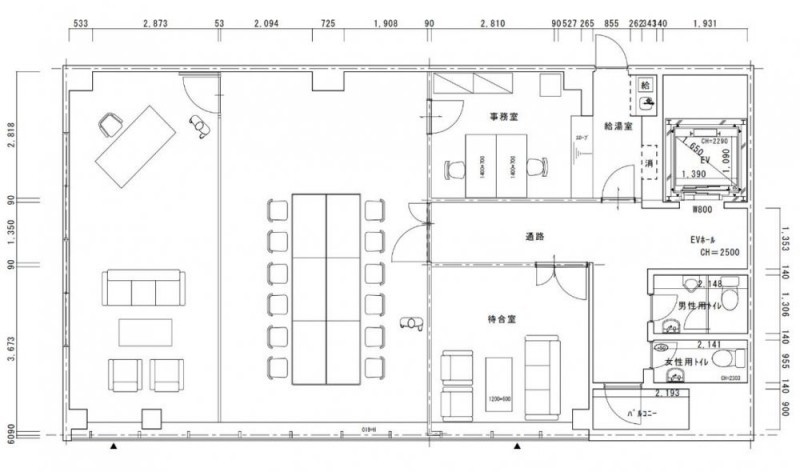
物件概要
所在階/建物の階建 7階(B-7F) / 地上8階建 主要採光面 構造 鉄骨造 間取り 契約期間 2年3ヶ月 権利金 住宅保険 その他費用 その他 - 看板作成料:5万5,000円
引渡し 相談 管理人 取引態様 仲介 物件No 設備・特徴 - 複数路線利用可
- その他:公共下水・エレベーター・上下水道・電気
備考 警備料 7700円(月額) 看板使用料 3300円(月額) 事務所 周辺には、徒歩5分で利用できる駅があります。賃料は52.2951万円です。2つの路線が利用可能で、どちらかの路線にトラブルがあっても別ルートが使えます。 主な周辺施設色がついているアイコンをクリックすると、本物件までの道順を見ることができます。
-
ホームページはこちら
福岡県知事 (1) 第19757号
(株)HETE総合不動産
※連合隊は物件情報の精度向上に努めています:「物件情報に誤りがある」「成約済みである」などお気付きの点がございましたらこちらよりご連絡ください。
写真枚数:4枚
店舗・事務所のお探しは弊社にお任せください!福岡県内どちらの物件もご紹介可能です♪♪
福岡で不動産のご相談はHETE総合不動産へお任せください!経験豊富なスタッフが物件の引き渡しまでしっかりサポートしていきます♪店舗の内装に関してもご希望に沿ったプランニングが出来ますので是非ご相談下さい!