WE大濠公園
ここに注目!重飲食可能!フリーレント二ヵ月可能! お問い合わせ、お待ちしております。 スケルトンの状態で引き渡し、スケルトンで返していただきます。
| 賃料・費用 |
44万円
(+管理費等 1万6,500円)
坪単価:約1.4万円/坪
敷120万円礼なし仲44万円
敷引・償却金:88万円(2ヶ月)
|
|---|---|
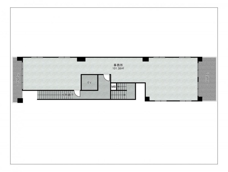
| 専有面積 | 101.38m² (30.66坪) |
| 住所 | 福岡県福岡市中央区大手門3丁目7-9 |
| 交通 | 大濠公園駅(徒歩3分)|唐人町駅(徒歩13分)|赤坂駅(徒歩18分) |
| 階/階建 | 7階建 |
| 築年月 | 築10年(2015年2月) |
| 駐車場 |
なし
|
空室確認、見学、詳細を知りたい方はこちら!
お電話の際は「連合隊の物件」とお伝えください。
情報掲載期限:あと28日(更新日 2025/12/27)
- 物件写真・概要
- 周辺地図
-
空室確認、見学、詳細を知りたい方はこちら!
おすすめポイント
- 駅徒歩3分以内
交通色がついているアイコンをクリックすると、本物件までの道順を見ることができます。
物件概要
所在階/建物の階建 201 / 地上7階建 主要採光面 構造 鉄筋コンクリート(RC)造 間取り 契約期間 1年間 権利金 住宅保険 出店推奨業種 出店不可業種 その他費用 その他 - 鍵交換:3万7,400円
引渡し 相談 管理人 取引態様 仲介 物件No 設備・特徴 - エレベーター
備考 町費 500円(月額) 店舗・事務所 人気の大濠エリア! 業種、ご相談ください。 主な周辺施設色がついているアイコンをクリックすると、本物件までの道順を見ることができます。
-
ホームページはこちら
福岡県知事 (1) 第19757号
(株)HETE総合不動産
※連合隊は物件情報の精度向上に努めています:「物件情報に誤りがある」「成約済みである」などお気付きの点がございましたらこちらよりご連絡ください。
写真枚数:10枚
店舗・事務所のお探しは弊社にお任せください!福岡県内どちらの物件もご紹介可能です♪♪
福岡で不動産のご相談はHETE総合不動産へお任せください!経験豊富なスタッフが物件の引き渡しまでしっかりサポートしていきます♪店舗の内装に関してもご希望に沿ったプランニングが出来ますので是非ご相談下さい!