【オフィス街◆飲食店】 スケルトン (物件No.847)
ここに注目!オフィス街にある飲食店向き物件に空きがでました!!重飲食や飲食以外の業種もご相談可能!!とても人気の場所となっております!現在スケルトン状態!いちから内装を造りたい方にお勧めの物件です!是非ご検討下さい!
▼すすきの貸店舗専門不動産【非公開情報も多数】コチラをクリック▼
| 賃料・費用 |
48万4,660円
(+管理費等 -円)
坪単価:約1.1万円/坪
敷264万3,600円仲48万4,660円
|
|---|---|
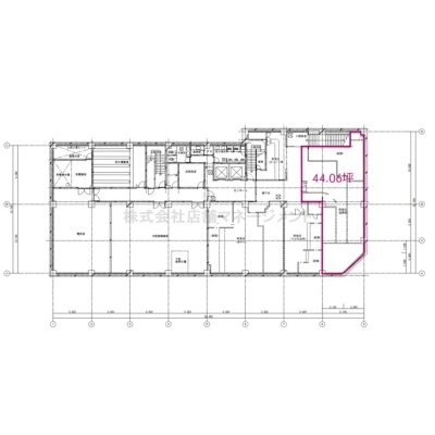
| 専有面積 | 145.66m² (44.06坪) |
| 住所 | 北海道札幌市中央区南一条西5 |
| 交通 | 大通駅(徒歩6分)|すすきの駅(徒歩7分)|豊水すすきの駅(徒歩12分)|西4丁目駅(徒歩2分)|狸小路駅(徒歩5分)道順を見る |
| 階/階建 | 地下1階 |
| 築年月 | |
| 駐車場 |
空室確認、見学、詳細を知りたい方はこちら!
お電話の際は「連合隊の物件」とお伝えください。
新着 情報掲載期限:あと30日(更新日 2026/4/28)
- 物件写真・概要
- 周辺地図
-
空室確認、見学、詳細を知りたい方はこちら!
おすすめポイント
- 駅徒歩3分以内
- 複数路線利用可
- 駅前立地
- スケルトン
- 出店するなら…この業種がおすすめ!
- 飲食全般(重飲食含む)

- 喫茶・カフェ(軽飲食)

- バー・クラブ・スナック

- 小売・物販

- 美容・健康・介護

- 医療

- 教育・スクール

- 事務所

- アミューズメント

交通色がついているアイコンをクリックすると、本物件までの道順を見ることができます。
- 大通駅札幌市営地下鉄南北線、札幌市営地下鉄東豊線、札幌市営地下鉄東西線徒歩6分(約453m)
- すすきの駅札幌市営地下鉄南北線、札幌市電山鼻線徒歩7分(約505m)
- 豊水すすきの駅札幌市営地下鉄東豊線徒歩12分(約906m)
- 西4丁目駅札幌市電山鼻線駅近!徒歩2分(約117m)
- 狸小路駅札幌市電山鼻線徒歩5分(約339m)
物件概要
所在階/建物の階建 地下1階 主要採光面 構造 鉄骨鉄筋コンクリート(SRC)造 間取り 契約期間 権利金 住宅保険 出店推奨業種 飲食全般(重飲食含む)、喫茶・カフェ(軽飲食) 出店不可業種 引渡し 相談 管理人 取引態様 仲介 物件No 847 設備・特徴 - 複数路線利用可
- 駅前立地
- スケルトン
備考 新規開業をお考えの方も安心サポート! 物件探しからオープンまで全面サポート! テナント探しは、 テナントに特化した不動産 『店舗マネージメント』にご相談ください! 主な周辺施設色がついているアイコンをクリックすると、本物件までの道順を見ることができます。
-
ホームページはこちら
北海道知事 石狩(4) 第7539号
(株)店舗マネージメント〒064-0912
TEL:011-562-9177
FAX:011-533-4114
営業時間:10:00~19:00
定休日:毎週 日曜・祝日
※連合隊は物件情報の精度向上に努めています:「物件情報に誤りがある」「成約済みである」などお気付きの点がございましたらこちらよりご連絡ください。
写真枚数:5枚
すすきのテナントに特化した不動産会社です!
すすきのテナント仲介専門店として、平成20年に創業。地域の人に支えられ今年で13年目となりました。安心したサポートをお約束致します。すすきので新規出店、増店等は是非当社にご相談下さい!