【クラブ・ラウンジ】 すすきの居抜き (物件No.584)
ここに注目!知名度のあるビルにまた新たに募集物件がでました!!EV前の大型ラウンジにも最適な店舗です! ご内覧希望等お気軽にお問合せください!
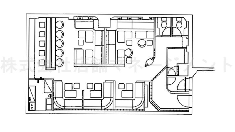
この物件は バー クラブ・ラウンジ スナック・パブ の居抜き物件です。
現状の設備が残されたまま取引されるため、初期費用を抑え速やかに事業を開始できるメリットがあります。
| 賃料・費用 |
40万1,500円
(+管理費等 8万3,600円)
坪単価:約1.3万円/坪
敷155万円仲40万1,500円
|
|---|---|
| 専有面積 | 100.17m² (30.3坪) |
| 住所 | 北海道札幌市中央区南五条西2 |
| 交通 | 資生館小学校前駅(徒歩8分)|狸小路駅(徒歩6分)|大通駅(徒歩9分)|すすきの駅(徒歩4分)|豊水すすきの駅(徒歩2分)道順を見る |
| 階/階建 | 8階 |
| 築年月 | |
| 駐車場 |
空室確認、見学、詳細を知りたい方はこちら!
お電話の際は「連合隊の物件」とお伝えください。
情報掲載期限:あと23日(更新日 2025/12/17)
- 物件写真・概要
- 周辺地図
-
空室確認、見学、詳細を知りたい方はこちら!
おすすめポイント
- 即入居可
- 駅徒歩3分以内
- 複数路線利用可
- 駅前立地
- 商店街に面す
- デザイナーズ
- 出店するなら…この業種がおすすめ!
- 飲食全般(重飲食含む)

- 喫茶・カフェ(軽飲食)

- バー・クラブ・スナック

- 小売・物販

- 美容・健康・介護

- 医療

- 教育・スクール

- 事務所

- アミューズメント

交通色がついているアイコンをクリックすると、本物件までの道順を見ることができます。
- 資生館小学校前駅札幌市電山鼻線徒歩8分(約576m)
- 狸小路駅札幌市電山鼻線徒歩6分(約453m)
- 大通駅札幌市営地下鉄南北線、札幌市営地下鉄東豊線、札幌市営地下鉄東西線徒歩9分(約716m)
- すすきの駅札幌市営地下鉄南北線、札幌市電山鼻線徒歩4分(約286m)
- 豊水すすきの駅札幌市営地下鉄東豊線駅近!徒歩2分(約151m)
物件概要
所在階/建物の階建 8階 主要採光面 構造 鉄骨鉄筋コンクリート(SRC)造 間取り 契約期間 権利金 住宅保険 出店推奨業種 バー・クラブ・スナック 出店不可業種 居抜き情報 [バー、クラブ・ラウンジ、スナック・パブ] の居抜きその他費用 毎月の費用 - 冷暖房費:8万3,600円
- EV費:9,999円
- 防虫防鼠:6,666円
引渡し 即時 管理人 取引態様 仲介 物件No 584 設備・特徴 - 複数路線利用可
- 駅前立地
- 商店街に面す
- エレベーター
- デザイナーズ
- 照明器具付
- 深夜営業相談可
備考 新規開業をお考えの方も安心サポート! すすきの専門不動産創業16年◆成約実績約900件以上! 物件探しからオープンまで全面サポート! テナント探しは、すすきのに特化した不動産 『店舗マネージメント』にご相談ください! 主な周辺施設色がついているアイコンをクリックすると、本物件までの道順を見ることができます。
-
ホームページはこちら
北海道知事 石狩(4) 第7539号
(株)店舗マネージメント〒064-0912
TEL:011-562-9177
FAX:011-533-4114
営業時間:10:00~19:00
定休日:毎週 日曜・祝日
※連合隊は物件情報の精度向上に努めています:「物件情報に誤りがある」「成約済みである」などお気付きの点がございましたらこちらよりご連絡ください。
写真枚数:8枚
すすきのテナントに特化した不動産会社です!
すすきのテナント仲介専門店として、平成20年に創業。地域の人に支えられ今年で13年目となりました。安心したサポートをお約束致します。すすきので新規出店、増店等は是非当社にご相談下さい!