【スナック・バー向け】 函館 ◆ 五稜郭公園前 居抜き (物件No.L07)
ここに注目!【五稜郭公園前◆スナック・バー向け】お洒落な内装◎スナック・バーでお探しの方にピッタリな内装◎店舗はもちろん仕入れ業者、申請手続きなど全力でアドバイスさせていただきます。内装状態や入居時期などお気軽にお問合せください!
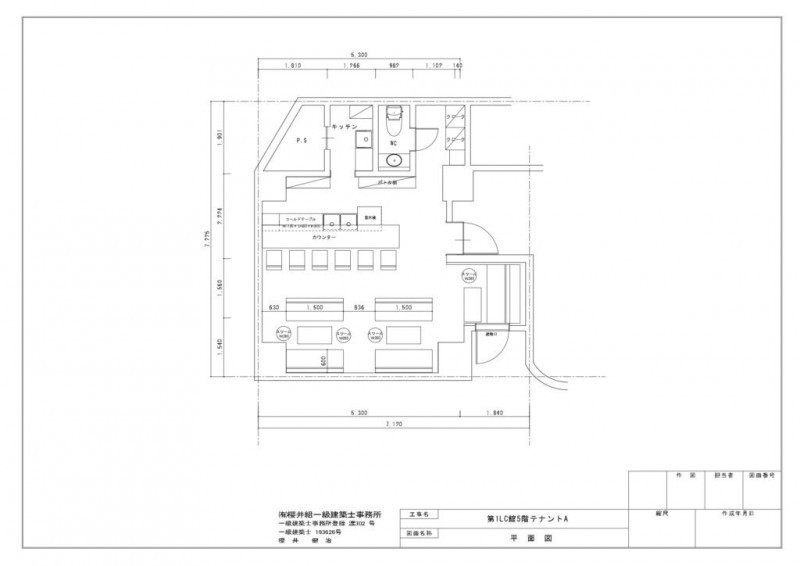
この物件は バー クラブ・ラウンジ スナック・パブ の居抜き物件です。
現状の設備が残されたまま取引されるため、初期費用を抑え速やかに事業を開始できるメリットがあります。
| 賃料・費用 |
14万4,496円
(+管理費等 4万5,155円)
坪単価:約8,800円/坪
敷30万円仲14万4,496円
|
|---|---|
| 専有面積 | 54.29m² (16.42坪) |
| 住所 | 北海道函館市本町17 |
| 交通 | 五稜郭公園前駅(徒歩4分)|中央病院前駅(徒歩7分)|杉並町駅(徒歩11分)|千代台駅(徒歩12分)|柏木町駅(徒歩17分) |
| 階/階建 | 5階 |
| 築年月 | |
| 駐車場 |
空室確認、見学、詳細を知りたい方はこちら!
お電話の際は「連合隊の物件」とお伝えください。
情報掲載期限:あと28日(更新日 2025/12/24)
- 物件写真・概要
- 周辺地図
-
空室確認、見学、詳細を知りたい方はこちら!
おすすめポイント
- 即入居可
- 駅徒歩5分以内
- 複数路線利用可
- 駅前立地
- 商店街に面す
- 幹線道路沿い
- デザイナーズ
- エアコン付
- 出店するなら…この業種がおすすめ!
- 飲食全般(重飲食含む)

- 喫茶・カフェ(軽飲食)

- バー・クラブ・スナック

- 小売・物販

- 美容・健康・介護

- 医療

- 教育・スクール

- 事務所

- アミューズメント

交通色がついているアイコンをクリックすると、本物件までの道順を見ることができます。
- 五稜郭公園前駅函館市電2系統、函館市電5系統徒歩4分(約273m)
- 中央病院前駅函館市電5系統、函館市電2系統徒歩7分(約529m)
- 杉並町駅函館市電5系統、函館市電2系統徒歩11分(約823m)
- 千代台駅函館市電5系統、函館市電2系統徒歩12分(約950m)
- 柏木町駅函館市電5系統、函館市電2系統徒歩17分(約1.4km)
物件概要
所在階/建物の階建 5階 主要採光面 構造 間取り 契約期間 権利金 住宅保険 出店推奨業種 喫茶・カフェ(軽飲食)、バー・クラブ・スナック 出店不可業種 居抜き情報 [バー、クラブ・ラウンジ、スナック・パブ] の居抜きその他費用 毎月の費用 - ごみ処理等:9,350円
引渡し 即時 管理人 取引態様 仲介 物件No L07 設備・特徴 - 複数路線利用可
- 駅前立地
- 商店街に面す
- 幹線道路沿い
- エレベーター
- デザイナーズ
- 照明器具付
- エアコン付
- 深夜営業相談可
備考 主な周辺施設色がついているアイコンをクリックすると、本物件までの道順を見ることができます。
-
ホームページはこちら
北海道知事 石狩(4) 第7539号
(株)店舗マネージメント〒064-0912
TEL:011-562-9177
FAX:011-533-4114
営業時間:10:00~19:00
定休日:毎週 日曜・祝日
※連合隊は物件情報の精度向上に努めています:「物件情報に誤りがある」「成約済みである」などお気付きの点がございましたらこちらよりご連絡ください。
写真枚数:10枚
すすきのテナントに特化した不動産会社です!
すすきのテナント仲介専門店として、平成20年に創業。地域の人に支えられ今年で13年目となりました。安心したサポートをお約束致します。すすきので新規出店、増店等は是非当社にご相談下さい!