ここに注目!福岡市営地下鉄空港線「西新」駅まで徒歩2分!好アクセスが魅力の貸店舗・貸事務所が募集開始です。 2024年1月築の築浅物件で、未だ使われていない真新しい空間。広々103.74m²のスケルトン渡しなので、思い描く理想の店舗・オフィスを自由に創り上げられます。 商店街に面した視認性の高い立地は、集客のチャンスを広げます。周辺には銀行、カフェ、飲食店、ドラッグストア、大型商業施設など、日々のビジネスを支える環境が整っています。 ブロードバンド回線やガス設備も完備。喫茶・カフェ、小売・物販、美容・健康・介護といった多様なビジネスに対応可能です。 初期費用を抑えられる礼金ゼロも嬉しいポイント。この機会に、西新エリアで新たなビジネスをスタートしませんか?ぜひ一度ご内覧ください!
| 賃料・費用 |
69万360円
(+管理費等 -円)
坪単価:約2.2万円/坪
敷627万6,000円礼なし仲69万360円
|
|---|---|
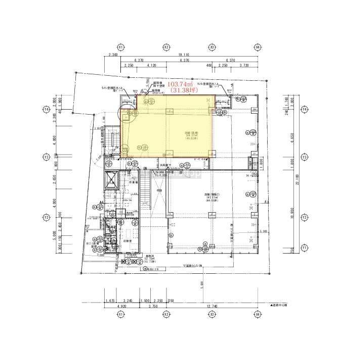
| 専有面積 | 103.74m² (31.38坪) |
| 住所 | 福岡県福岡市早良区西新4-9-16 |
| 交通 | 別府駅(徒歩23分)|唐人町駅(徒歩17分)|藤崎駅(徒歩13分)|西新駅(徒歩2分)道順を見る |
| 階/階建 | 2階 / 13階建 |
| 築年月 | 築1年(2025年2月) |
| 駐車場 |
なし
|
空室確認、見学、詳細を知りたい方はこちら!
お電話の際は「連合隊の物件」とお伝えください。
情報掲載期限:あと21日(更新日 2026/2/5)
- 物件写真・概要
- 周辺地図
-
空室確認、見学、詳細を知りたい方はこちら!
おすすめポイント
- 即入居可
- 駅徒歩3分以内
- 複数路線利用可
- 商店街に面す
- スケルトン
- 光ファイバー
- 出店するなら…この業種がおすすめ!
- 飲食全般(重飲食含む)

- 喫茶・カフェ(軽飲食)

- バー・クラブ・スナック

- 小売・物販

- 美容・健康・介護

- 医療

- 教育・スクール

- 事務所

- アミューズメント

※出店不可の業種:重飲食(軽飲食は相談可)
交通色がついているアイコンをクリックすると、本物件までの道順を見ることができます。
- 別府駅福岡市営地下鉄七隈線徒歩23分(約1.8km)
- 唐人町駅福岡市営地下鉄空港線徒歩17分(約1.4km)
- 藤崎駅福岡市営地下鉄空港線徒歩13分(約1.1km)
- 西新駅福岡市営地下鉄空港線駅近!徒歩2分(約104m)
物件概要
所在階/建物の階建 2階(2B) / 地上13階建 主要採光面 北 構造 鉄筋コンクリート(RC)造 間取り その他その他 契約期間 2年間 権利金 住宅保険 出店推奨業種 喫茶・カフェ(軽飲食)、小売・物販、美容・健康・介護 出店不可業種 重飲食(軽飲食は相談可) その他費用 毎月の費用 - 自治会費:6,000円
一時金 - 自治会入会金:1万円
- 保証料:69万360円
引渡し 即時 管理人 取引態様 仲介 物件No 設備・特徴 - 複数路線利用可
- 商店街に面す
- スケルトン
- ブロードバンド回線(光ファイバー等の高速インターネット)
- ガス設備
備考 主な周辺施設色がついているアイコンをクリックすると、本物件までの道順を見ることができます。
-

この物件の担当者 岩手雅裕(いわてまさひろ)
初めまして、岩手と申します。 テナントのことに関するご質問やご相談がございましたら、お気軽にお問い合わせください。 ご希望のご条件に沿った物件探しを、精一杯サポート頂きます。 よろしくお願い致します。
ホームページはこちら国土交通大臣 (3) 第8462号
(株)ハウスサポート
※連合隊は物件情報の精度向上に努めています:「物件情報に誤りがある」「成約済みである」などお気付きの点がございましたらこちらよりご連絡ください。
写真枚数:4枚
店舗・事務所・居抜き物件のことはハウスサポートへ。福岡県内8店舗【アパマンショップ加盟店です】
不動産業界15年以上の豊富な知識を持ったスタッフがご希望の事業用物件探しをサポートさせて頂きます。ネットに掲載している物件以外も取扱いがありますので、お気軽にお問い合わせください。【福岡県内8店舗】