ここに注目!天井高3,300mm☆スケルトン渡し☆職種要相談☆※間取、設備、方位等は現況優先、3Fはガス管無し、ガス設備設置不可 ※2.3Fのテナントの室外機置場は屋上。※電力会社と弊社が高圧一括受電契約を行い、変圧器(キュービクル)を通して各テナントに電気供給、電気料金は弊社が委託した業者が毎月検針を行い金額を算出し、弊社より後日請求します。 ・駐輪場無、敷地内駐輪禁止、ゴミ置き場無(各自事業用の要契約) ・貸室内の全ての設備(24時間換気扇、消火器、感知器、非常用照明等)、および網戸がある場合はサービス設置 ※内装工事の際には煙感知器以外の電気機器類の配線を各自でテナント内に設けますブレーカーに繋ぎなおしていただく必要がございます。(避難誘導灯、非常用照明、24時間換気扇等)・鍵交換は1ヶ所19,800円税込 ・保険はテナント側で加入(賠償責任特約付きの保険) ・本物件並びに本物件敷地内は、健康増進法一部改正により全面禁煙(加熱式煙草も含む) ・テナント名入れは弊社指定業者で指定箇所(テナント名を入れる看板)に入れます。 ※建物左側の壁、1FEV横(予定)の2ヶ所のため44,000円税込
| 賃料・費用 |
14万5,943円
(+管理費等 5,500円)
坪単価:約1.6万円/坪
敷53万702円礼14万5,943円(1ヶ月)仲14万5,943円
|
|---|---|
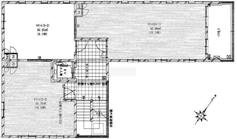
| 専有面積 | 30.25m² (9.15坪) |
| 住所 | 福岡県福岡市中央区高砂2-14-3 |
| 交通 | 西鉄平尾駅(徒歩9分)|渡辺通駅(徒歩13分)|薬院駅(徒歩14分)|高宮駅(徒歩18分) |
| 階/階建 | 3階 / 3階建 |
| 築年月 | 築1年(2024年10月) |
| 駐車場 |
なし
|
空室確認、見学、詳細を知りたい方はこちら!
お電話の際は「連合隊の物件」とお伝えください。
情報掲載期限:あと18日(更新日 2026/3/24)
- 物件写真・概要
- 周辺地図
-
空室確認、見学、詳細を知りたい方はこちら!
おすすめポイント
- 複数路線利用可
- スケルトン
- 出店するなら…この業種がおすすめ!
- 飲食全般(重飲食含む)

- 喫茶・カフェ(軽飲食)

- バー・クラブ・スナック

- 小売・物販

- 美容・健康・介護

- 医療

- 教育・スクール

- 事務所

- アミューズメント

交通色がついているアイコンをクリックすると、本物件までの道順を見ることができます。
- 西鉄平尾駅西鉄天神大牟田線徒歩9分(約702m)
- 渡辺通駅福岡市営地下鉄七隈線徒歩13分(約1.1km)
- 薬院駅西鉄天神大牟田線、福岡市営地下鉄七隈線徒歩14分(約1.1km)
- 高宮駅西鉄天神大牟田線徒歩18分(約1.4km)
物件概要
所在階/建物の階建 3階(302) / 地上3階建 主要採光面 北 構造 鉄筋コンクリート(RC)造 間取り その他その他 契約期間 2年間 権利金 住宅保険 出店推奨業種 小売・物販、美容・健康・介護、事務所 出店不可業種 その他費用 毎月の費用 - 引落手数料:330円
一時金 - 鍵交換料:1万9,800円
- 保証料:15万1,443円
引渡し 2025年11月下旬 管理人 取引態様 仲介 物件No 設備・特徴 - 複数路線利用可
- エレベーター
- スケルトン
備考 本物件は『福祉のまちづくり条例整備基準適合物件』です。仲介業者様は事前にご契約者の工事計画内容、工事図面等の提出を弊社に行い、弊社の工事許可が必要です。あわせて工事業者は福岡市に対し手続きが必要です。 直接こちらにご確認下さい→福岡市住宅都市局 建築指導部 建築審査課 電話番号: 092-711-4577 ※内装完了後、必ず福岡市の完了検査済印が押されている特定施設工事完了届出書のコピーを提出要。 主な周辺施設色がついているアイコンをクリックすると、本物件までの道順を見ることができます。
-

この物件の担当者 岩手雅裕(いわてまさひろ)
初めまして、岩手と申します。 テナントのことに関するご質問やご相談がございましたら、お気軽にお問い合わせください。 ご希望のご条件に沿った物件探しを、精一杯サポート頂きます。 よろしくお願い致します。
ホームページはこちら国土交通大臣 (3) 第8462号
(株)ハウスサポート
※連合隊は物件情報の精度向上に努めています:「物件情報に誤りがある」「成約済みである」などお気付きの点がございましたらこちらよりご連絡ください。
写真枚数:6枚
店舗・事務所・居抜き物件のことはハウスサポートへ。福岡県内8店舗【アパマンショップ加盟店です】
不動産業界15年以上の豊富な知識を持ったスタッフがご希望の事業用物件探しをサポートさせて頂きます。ネットに掲載している物件以外も取扱いがありますので、お気軽にお問い合わせください。【福岡県内8店舗】