ここに注目!福岡市西区下山門に位置する当テナントは、小売・物販店や事務所をお探しの方にぴったりの物件です。広々とした45.04㎡の空間は、新しいビジネスの拠点として理想的。南向きで明るく、エアコンも完備されているため、一年を通して快適にお過ごしいただけます。 JR筑肥線「下山門駅」まで徒歩15分、「姪浜駅」まで徒歩17分と、複数路線が利用できるアクセスも魅力です。周辺にはコンビニや飲食店が充実しており、急な買い出しやお昼休憩にも困りません。 敷金0円で初期費用を抑えられるのも嬉しいポイント。専用駐車場も1台分ございますので、お車での通勤やお客様の来店にも便利です。男女別トイレやガス・給排水設備も整っており、安心して事業をスタートしていただけます。 新しい挑戦を当テナントで始めてみませんか?ぜひ一度、現地をご覧ください。
| 賃料・費用 |
19万2,500円
(+管理費等 5,500円)
坪単価:約1.4万円/坪
敷なし礼35万円仲19万2,500円
|
|---|---|
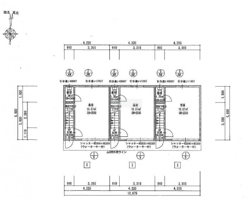
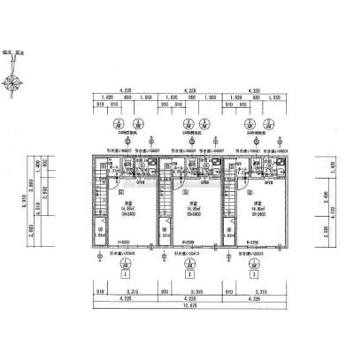
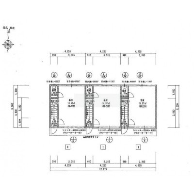
| 専有面積 | 45.04m² (13.62坪) |
| 住所 | 福岡県福岡市西区下山門1-20-4 |
| 交通 | 姪浜駅(徒歩17分)|下山門駅(徒歩15分)道順を見る |
| 階/階建 | 1階 / 2階建 |
| 築年月 | 築3年(2022年5月) |
| 駐車場 |
あり (1万1,000円/台) 駐車可能台数:1台
|
空室確認、見学、詳細を知りたい方はこちら!
お電話の際は「連合隊の物件」とお伝えください。
情報掲載期限:あと24日(更新日 2026/2/8)
- 物件写真・概要
- 周辺地図
-
空室確認、見学、詳細を知りたい方はこちら!
おすすめポイント
- 複数路線利用可
- 駐車場あり
- 男女別トイレ
- エアコン付
- 出店するなら…この業種がおすすめ!
- 飲食全般(重飲食含む)

- 喫茶・カフェ(軽飲食)

- バー・クラブ・スナック

- 小売・物販

- 美容・健康・介護

- 医療

- 教育・スクール

- 事務所

- アミューズメント

交通色がついているアイコンをクリックすると、本物件までの道順を見ることができます。
物件概要
所在階/建物の階建 1階(2) / 地上2階建 主要採光面 南 構造 木造 間取り その他その他 契約期間 2年間 権利金 住宅保険 出店推奨業種 小売・物販、事務所 出店不可業種 その他費用 一時金 - 鍵交換料:3万3,000円
- 保証料:19万8,000円
引渡し 相談 管理人 取引態様 仲介 物件No 設備・特徴 - 複数路線利用可
- 給排水設備
- エアコン付
- 男女別トイレ
- ガス設備
備考 主な周辺施設色がついているアイコンをクリックすると、本物件までの道順を見ることができます。
-

この物件の担当者 岩手雅裕(いわてまさひろ)
初めまして、岩手と申します。 テナントのことに関するご質問やご相談がございましたら、お気軽にお問い合わせください。 ご希望のご条件に沿った物件探しを、精一杯サポート頂きます。 よろしくお願い致します。
ホームページはこちら国土交通大臣 (3) 第8462号
(株)ハウスサポート
※連合隊は物件情報の精度向上に努めています:「物件情報に誤りがある」「成約済みである」などお気付きの点がございましたらこちらよりご連絡ください。
写真枚数:9枚
店舗・事務所・居抜き物件のことはハウスサポートへ。福岡県内8店舗【アパマンショップ加盟店です】
不動産業界15年以上の豊富な知識を持ったスタッフがご希望の事業用物件探しをサポートさせて頂きます。ネットに掲載している物件以外も取扱いがありますので、お気軽にお問い合わせください。【福岡県内8店舗】