ここに注目!春の起業・移転応援キャンペーン開催!!4月30日申込分までフリーレントご相談可能です♪ 敷金5ヶ月→3ヵ月、礼金1ヶ月→0条件変更!和白通り沿いロードサイドの新築倉庫事務所☆1階は倉庫仕様、2階は事務所仕様となっており、前面に駐車区画2台分確保もできます。「西日本鉄道貝塚線 唐の原駅」「鹿児島本線 九産大前駅」も徒歩圏内で、博多や天神方面からのバスの本数も多く、交通インフラも充実し通勤にも便利なエリアです☆常時ご案内受付しております。気軽にお問い合わせください♪
| 賃料・費用 |
24万2,000円
(+管理費等 -円)
坪単価:約1.2万円/坪
敷72万6,000円(3ヶ月)礼なし仲24万2,000円
|
|---|---|
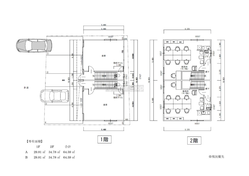
| 専有面積 | 64.59m² (19.53坪) |
| 住所 | 福岡県福岡市東区和白1-1-29 |
| 交通 | 唐の原駅(徒歩7分)|九産大前駅(徒歩14分)|和白駅(徒歩14分)道順を見る |
| 階/階建 | 1階 / 2階建 |
| 築年月 | 新築(2025年12月) |
| 駐車場 |
あり 駐車可能台数:2台
|
空室確認、見学、詳細を知りたい方はこちら!
お電話の際は「連合隊の物件」とお伝えください。
情報掲載期限:あと23日(更新日 2026/3/28)
- 物件写真・概要
- 周辺地図
-
空室確認、見学、詳細を知りたい方はこちら!
おすすめポイント
- 即入居可
- 複数路線利用可
- 幹線道路沿い
- 駐車2台以上可
- 男女別トイレ
- エアコン付
- 出店するなら…この業種がおすすめ!
- 飲食全般(重飲食含む)

- 喫茶・カフェ(軽飲食)

- バー・クラブ・スナック

- 小売・物販

- 美容・健康・介護

- 医療

- 教育・スクール

- 事務所

- アミューズメント

交通色がついているアイコンをクリックすると、本物件までの道順を見ることができます。
物件概要
所在階/建物の階建 1階(B) / 地上2階建 主要採光面 構造 木造 間取り その他その他 契約期間 2年間 権利金 住宅保険 出店推奨業種 喫茶・カフェ(軽飲食)、小売・物販、事務所 出店不可業種 その他費用 一時金 - 初回保証料:24万2,000円
引渡し 即時 管理人 取引態様 仲介 物件No 設備・特徴 - 複数路線利用可
- 幹線道路沿い
- エアコン付
- 男女別トイレ
- ガス設備
備考 主な周辺施設色がついているアイコンをクリックすると、本物件までの道順を見ることができます。
-

この物件の担当者 岩手雅裕(いわてまさひろ)
初めまして、岩手と申します。 テナントのことに関するご質問やご相談がございましたら、お気軽にお問い合わせください。 ご希望のご条件に沿った物件探しを、精一杯サポート頂きます。 よろしくお願い致します。
ホームページはこちら国土交通大臣 (3) 第8462号
(株)ハウスサポート
※連合隊は物件情報の精度向上に努めています:「物件情報に誤りがある」「成約済みである」などお気付きの点がございましたらこちらよりご連絡ください。
写真枚数:14枚
店舗・事務所・居抜き物件のことはハウスサポートへ。福岡県内8店舗【アパマンショップ加盟店です】
不動産業界15年以上の豊富な知識を持ったスタッフがご希望の事業用物件探しをサポートさせて頂きます。ネットに掲載している物件以外も取扱いがありますので、お気軽にお問い合わせください。【福岡県内8店舗】