ここに注目!福岡市西区横浜に、新しいビジネスの拠点にぴったりの貸店舗・事務所が誕生いたします!現在建築中で、2026年4月にお引き渡し予定。真新しい空間で、あなたの夢をスタートさせませんか? 広々とした専有面積117.33m²は、様々な業種に対応できるゆとりの空間です。敷金0円で初期費用を抑えられるのは、新しい挑戦を始める方にとって嬉しいポイントですね。駐車場も1台確保されているので、お客様の来店や荷物の搬入もスムーズに行っていただけます。 周辺には病院や保育園、コンビニ、飲食店などが揃い、働く方にも訪れる方にも便利な環境が魅力。喫茶・カフェ(軽飲食)や美容・健康・介護、事務所など、幅広いビジネスにおすすめです。ガス設備も完備しており、快適な営業をサポートいたします。 新しいスタートを応援するこの物件で、ぜひ理想のビジネスを実現してください。詳細はお気軽にお問い合わせください。
| 賃料・費用 |
35万2,000円
(+管理費等 -円)
坪単価:約9,919円/坪
敷なし礼96万円仲35万2,000円
|
|---|---|
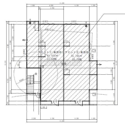
| 専有面積 | 117.33m² (35.49坪) |
| 住所 | 福岡県福岡市西区横浜 (詳細非公開) |
| 交通 | 今宿駅(徒歩17分)|九大学研都市駅(徒歩21分) |
| 階/階建 | 1階 / 2階建 |
| 築年月 | 建築中(2026年4月完成予定) |
| 駐車場 |
あり (7,700円/台) 駐車可能台数:1台
|
空室確認、見学、詳細を知りたい方はこちら!
お電話の際は「連合隊の物件」とお伝えください。
新着 情報掲載期限:あと27日(更新日 2026/2/11)
- 物件写真・概要
- 周辺地図
-
空室確認、見学、詳細を知りたい方はこちら!
おすすめポイント
- 複数路線利用可
- 駐車場あり
- 出店するなら…この業種がおすすめ!
- 飲食全般(重飲食含む)

- 喫茶・カフェ(軽飲食)

- バー・クラブ・スナック

- 小売・物販

- 美容・健康・介護

- 医療

- 教育・スクール

- 事務所

- アミューズメント

※出店不可の業種:重飲食(軽飲食は相談可)
交通
- 今宿駅JR筑肥線徒歩17分(約1.4km)
- 九大学研都市駅JR筑肥線徒歩21分(約1.7km)
物件概要
所在階/建物の階建 1階(101) / 地上2階建 主要採光面 構造 木造 間取り その他その他 契約期間 2年間 権利金 住宅保険 出店推奨業種 喫茶・カフェ(軽飲食)、美容・健康・介護、事務所 出店不可業種 重飲食(軽飲食は相談可) その他費用 一時金 - 初回保証料:35万2,000円
引渡し 2026年4月中旬 管理人 取引態様 仲介 物件No 設備・特徴 - 複数路線利用可
- ガス設備
備考 主な周辺施設
- 医療法人豊栄会福岡豊栄会病院約905m(徒歩12分)
- 今宿保育園約526m(徒歩7分)
- セブンイレブン福岡横浜2丁目店約634m(徒歩8分)
- 松原幼稚園約653m(徒歩9分)
- 焼肉ウエスト今宿店約905m(徒歩12分)
- 今宿病院約767m(徒歩10分)
- 吉野家202号線今宿店約1.1km(徒歩13分)
- ケンタッキーフライドチキン福岡今宿店約963m(徒歩13分)
- マツモトキヨシ今宿店約810m(徒歩11分)
- 福岡舞鶴誠和第1保育園約1.1km(徒歩13分)
-

この物件の担当者 岩手雅裕(いわてまさひろ)
初めまして、岩手と申します。 テナントのことに関するご質問やご相談がございましたら、お気軽にお問い合わせください。 ご希望のご条件に沿った物件探しを、精一杯サポート頂きます。 よろしくお願い致します。
ホームページはこちら国土交通大臣 (3) 第8462号
(株)ハウスサポート
※連合隊は物件情報の精度向上に努めています:「物件情報に誤りがある」「成約済みである」などお気付きの点がございましたらこちらよりご連絡ください。
写真枚数:3枚
店舗・事務所・居抜き物件のことはハウスサポートへ。福岡県内8店舗【アパマンショップ加盟店です】
不動産業界15年以上の豊富な知識を持ったスタッフがご希望の事業用物件探しをサポートさせて頂きます。ネットに掲載している物件以外も取扱いがありますので、お気軽にお問い合わせください。【福岡県内8店舗】