ここに注目!福岡市博多区綱場町に、2026年9月完成予定の新しいビジネス拠点が誕生いたします!福岡市営地下鉄箱崎線「呉服町」駅から徒歩4分という好立地で、複数路線が利用可能。お客様にも従業員様にも喜ばれることでしょう。 鉄筋コンクリート造12階建ての建物で、今回ご紹介するのは広々とした44.22㎡の空間です。スケルトン渡しなので、小売・物販、美容・健康・介護など、お客様の理想とする店舗やオフィスを自由にデザインしていただけます。 周辺には銀行、コンビニ、飲食店、スーパー、病院などが徒歩圏内に揃い、日々のビジネスを強力にサポートする環境が整っています。新しいスタートを切る皆様にぴったりのこの物件で、新たなビジネスの夢を、この場所で実現しませんか?ぜひ一度、詳細をご覧になりませんか?皆様からのお問い合わせを心よりお待ちしております。
| 賃料・費用 |
29万4,140円
(+管理費等 -円)
坪単価:約2.2万円/坪
敷なし礼80万2,200円仲29万4,140円
|
|---|---|
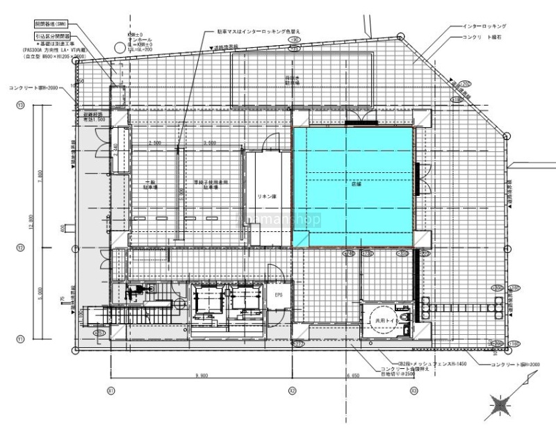
| 専有面積 | 44.22m² (13.37坪) |
| 住所 | 福岡県福岡市博多区綱場町8-27 |
| 交通 | 呉服町駅(徒歩4分)|中洲川端駅(徒歩8分)|千代県庁口駅(徒歩11分)|祇園駅(徒歩11分)|櫛田神社前駅(徒歩15分)道順を見る |
| 階/階建 | 1階 / 12階建 |
| 築年月 | 建築中(2026年9月完成予定) |
| 駐車場 |
なし
|
空室確認、見学、詳細を知りたい方はこちら!
お電話の際は「連合隊の物件」とお伝えください。
情報掲載期限:あと25日(更新日 2026/3/29)
- 物件写真・概要
- 周辺地図
-
空室確認、見学、詳細を知りたい方はこちら!
おすすめポイント
- 駅徒歩5分以内
- 複数路線利用可
- 幹線道路沿い
- スケルトン
- 出店するなら…この業種がおすすめ!
- 飲食全般(重飲食含む)

- 喫茶・カフェ(軽飲食)

- バー・クラブ・スナック

- 小売・物販

- 美容・健康・介護

- 医療

- 教育・スクール

- 事務所

- アミューズメント

交通色がついているアイコンをクリックすると、本物件までの道順を見ることができます。
- 呉服町駅福岡市営地下鉄箱崎線徒歩4分(約297m)
- 中洲川端駅福岡市営地下鉄箱崎線、福岡市営地下鉄空港線徒歩8分(約615m)
- 千代県庁口駅福岡市営地下鉄箱崎線徒歩11分(約870m)
- 祇園駅福岡市営地下鉄空港線徒歩11分(約877m)
- 櫛田神社前駅福岡市営地下鉄七隈線徒歩15分(約1.2km)
物件概要
所在階/建物の階建 1階 / 地上12階建 主要採光面 構造 鉄筋コンクリート(RC)造 間取り その他その他 契約期間 3年間 権利金 住宅保険 出店推奨業種 小売・物販、美容・健康・介護 出店不可業種 その他費用 一時金 - 初回保証料:29万4,140円
引渡し 相談 管理人 取引態様 仲介 物件No 設備・特徴 - 複数路線利用可
- 幹線道路沿い
- スケルトン
備考 主な周辺施設色がついているアイコンをクリックすると、本物件までの道順を見ることができます。
-

この物件の担当者 岩手雅裕(いわてまさひろ)
初めまして、岩手と申します。 テナントのことに関するご質問やご相談がございましたら、お気軽にお問い合わせください。 ご希望のご条件に沿った物件探しを、精一杯サポート頂きます。 よろしくお願い致します。
ホームページはこちら国土交通大臣 (3) 第8462号
(株)ハウスサポート
※連合隊は物件情報の精度向上に努めています:「物件情報に誤りがある」「成約済みである」などお気付きの点がございましたらこちらよりご連絡ください。
写真枚数:3枚
店舗・事務所・居抜き物件のことはハウスサポートへ。福岡県内8店舗【アパマンショップ加盟店です】
不動産業界15年以上の豊富な知識を持ったスタッフがご希望の事業用物件探しをサポートさせて頂きます。ネットに掲載している物件以外も取扱いがありますので、お気軽にお問い合わせください。【福岡県内8店舗】