ここに注目!福岡市中央区大名に位置する当ビルは、お客様のビジネスを力強くサポートする貸事務所物件です。 天神南駅、天神駅、西鉄福岡(天神)駅、赤坂駅と、複数路線・複数駅が徒歩圏内でアクセスできるため、お客様や従業員様の通勤にも大変便利です。福岡の中心地「天神」エリアの利便性を存分に享受していただけます。 周辺には飲食店やショッピング施設が豊富に揃っており、ランチや休憩、仕事帰りのお買い物にも困りません。 広々とした78.19m²の専有面積は、多様なオフィスレイアウトに対応可能。エレベーターも完備しており、6階へのアクセスもスムーズです。ガス設備や給排水設備も整っており、オフィスとしての機能性も十分にご活用いただけます。 新しいビジネスの拠点として、この魅力的な物件をぜひ一度ご検討ください。
| 賃料・費用 |
17万6,000円
(+管理費等 -円)
坪単価:約7,442円/坪
敷17万6,000円(1ヶ月)礼35万2,000円(2ヶ月)仲17万6,000円
敷引・償却金:17万6,000円(1ヶ月)
|
|---|---|
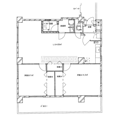
| 専有面積 | 78.19m² (23.65坪) |
| 住所 | 福岡県福岡市中央区大名2-1-43 |
| 交通 | 天神南駅(徒歩10分)|天神駅(徒歩8分)|西鉄福岡(天神)駅(徒歩7分)|赤坂駅(徒歩7分)道順を見る |
| 階/階建 | 6階 / 8階建 |
| 築年月 | 築46年(1979年5月) |
| 駐車場 |
なし
|
空室確認、見学、詳細を知りたい方はこちら!
お電話の際は「連合隊の物件」とお伝えください。
情報掲載期限:あと10日(更新日 2026/1/25)
- 物件写真・概要
- 周辺地図
-
空室確認、見学、詳細を知りたい方はこちら!
おすすめポイント
- 即入居可
- 複数路線利用可
交通色がついているアイコンをクリックすると、本物件までの道順を見ることができます。
- 天神南駅福岡市営地下鉄七隈線徒歩10分(約753m)
- 天神駅福岡市営地下鉄空港線徒歩8分(約596m)
- 西鉄福岡(天神)駅西鉄天神大牟田線徒歩7分(約492m)
- 赤坂駅福岡市営地下鉄空港線徒歩7分(約482m)
物件概要
所在階/建物の階建 6階(601) / 地上8階建 主要採光面 構造 鉄骨鉄筋コンクリート(SRC)造 間取り その他その他 契約期間 2年間 権利金 住宅保険 6,410円(1年間) その他費用 毎月の費用 - 口座振替手数料:330円
一時金 - 鍵交換:1万7,600円
- 保証料:17万6,000円
引渡し 即時 管理人 取引態様 仲介 物件No 設備・特徴 - 複数路線利用可
- エレベーター
- ガス設備
- 給排水設備
備考 主な周辺施設色がついているアイコンをクリックすると、本物件までの道順を見ることができます。
-

この物件の担当者 岩手雅裕(いわてまさひろ)
初めまして、岩手と申します。 テナントのことに関するご質問やご相談がございましたら、お気軽にお問い合わせください。 ご希望のご条件に沿った物件探しを、精一杯サポート頂きます。 よろしくお願い致します。
ホームページはこちら国土交通大臣 (3) 第8462号
(株)ハウスサポート
※連合隊は物件情報の精度向上に努めています:「物件情報に誤りがある」「成約済みである」などお気付きの点がございましたらこちらよりご連絡ください。
写真枚数:8枚
店舗・事務所・居抜き物件のことはハウスサポートへ。福岡県内8店舗【アパマンショップ加盟店です】
不動産業界15年以上の豊富な知識を持ったスタッフがご希望の事業用物件探しをサポートさせて頂きます。ネットに掲載している物件以外も取扱いがありますので、お気軽にお問い合わせください。【福岡県内8店舗】