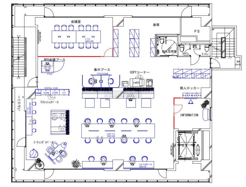
ここに注目!博多区でオフィスをお探しの方へ。築浅の「当テナント」をご紹介します! 福岡市営地下鉄箱崎線「呉服町」駅まで徒歩4分、「中洲川端」駅まで徒歩6分の好立地。複数路線利用可能でアクセスに優れています。周辺には飲食店やコンビニ、銀行などが揃い、ビジネスを強力にサポートする環境です。 2021年4月築の新しい建物で、広々とした専有面積255.18㎡のオフィスは、多様なビジネスニーズに対応可能です。エレベーター完備はもちろん、24時間セキュリティー、個別空調、男女別トイレなど、快適なオフィス環境を整える設備が充実しています。 未使用の区画ですので、新しいオフィスで心機一転、事業をスタートさせたい方におすすめです。ぜひ一度、この機会にご内見ください!お問い合わせをお待ちしております。
| 賃料・費用 |
127万3,635円
(+管理費等 -円)
坪単価:約1.7万円/坪
敷347万3,550円仲127万3,635円
|
|---|---|
| 専有面積 | 255.18m² (77.19坪) |
| 住所 | 福岡県福岡市博多区綱場町6-15 |
| 交通 | 呉服町駅(徒歩4分)|中洲川端駅(徒歩6分)|祇園駅(徒歩11分)|千代県庁口駅(徒歩12分)|櫛田神社前駅(徒歩13分)道順を見る |
| 階/階建 | 6階 / 11階建 |
| 築年月 | 築4年(2021年4月) |
| 駐車場 |
なし
|
空室確認、見学、詳細を知りたい方はこちら!
お電話の際は「連合隊の物件」とお伝えください。
新着 情報掲載期限:あと28日(更新日 2025/12/7)
- 物件写真・概要
- 周辺地図
-
空室確認、見学、詳細を知りたい方はこちら!
おすすめポイント
- 即入居可
- 駅徒歩5分以内
- 男女別トイレ
- 24時間セキュリティー
交通色がついているアイコンをクリックすると、本物件までの道順を見ることができます。
- 呉服町駅福岡市営地下鉄箱崎線徒歩4分(約283m)
- 中洲川端駅福岡市営地下鉄箱崎線、福岡市営地下鉄空港線徒歩6分(約475m)
- 祇園駅福岡市営地下鉄空港線徒歩11分(約859m)
- 千代県庁口駅福岡市営地下鉄箱崎線徒歩12分(約903m)
- 櫛田神社前駅福岡市営地下鉄七隈線徒歩13分(約1.1km)
物件概要
所在階/建物の階建 6階 / 地上11階建 主要採光面 構造 鉄筋コンクリート(RC)造 間取り その他その他 契約期間 3年間 権利金 住宅保険 引渡し 即時 管理人 取引態様 仲介 物件No 設備・特徴 - 個別空調
- エレベーター
- 男女別トイレ
- 24時間セキュリティー
備考 主な周辺施設色がついているアイコンをクリックすると、本物件までの道順を見ることができます。
-

この物件の担当者 岩手雅裕(いわてまさひろ)
初めまして、岩手と申します。 テナントのことに関するご質問やご相談がございましたら、お気軽にお問い合わせください。 ご希望のご条件に沿った物件探しを、精一杯サポート頂きます。 よろしくお願い致します。
ホームページはこちら国土交通大臣 (3) 第8462号
(株)ハウスサポート
※連合隊は物件情報の精度向上に努めています:「物件情報に誤りがある」「成約済みである」などお気付きの点がございましたらこちらよりご連絡ください。
写真枚数:14枚
店舗・事務所・居抜き物件のことはハウスサポートへ。福岡県内8店舗【アパマンショップ加盟店です】
不動産業界15年以上の豊富な知識を持ったスタッフがご希望の事業用物件探しをサポートさせて頂きます。ネットに掲載している物件以外も取扱いがありますので、お気軽にお問い合わせください。【福岡県内8店舗】