ここに注目!福岡市中央区大名に佇む「テナントビル」8階部分の貸店舗貸事務所をご紹介します。 福岡市営地下鉄空港線「赤坂」駅まで徒歩6分、「天神」駅まで徒歩7分、さらに西鉄天神大牟田線「西鉄福岡(天神)」駅まで徒歩10分と、複数路線が利用できる交通至便な立地です。周辺にはコンビニ、飲食店、銀行、郵便局などが充実し、ビジネスを強力にサポートする環境が広がります。 専有面積43.97m²の空間は、エレベーター完備で快適。幹線道路沿いの視認性も高く、お客様を迎えやすいでしょう。初期費用を抑えたい事業主様にもご注目いただきたい、敷金・礼金ゼロでのご契約が可能です。 天神エリアでの事業拡大や新規開業にぴったりのこの物件で、新たな一歩を踏み出しませんか?ご質問や内覧のご希望など、お気軽にお問い合わせください。
| 賃料・費用 |
32万1,860円
(+管理費等 -円)
坪単価:約2.4万円/坪
敷なし礼なし仲32万1,860円
|
|---|---|
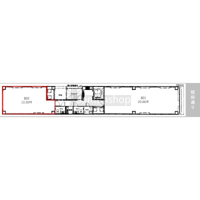
| 専有面積 | 43.97m² (13.3坪) |
| 住所 | 福岡県福岡市中央区大名2-9-34 |
| 交通 | 赤坂駅(徒歩6分)|天神駅(徒歩7分)|西鉄福岡(天神)駅(徒歩10分)|天神南駅(徒歩13分)|中洲川端駅(徒歩17分)道順を見る |
| 階/階建 | 8階 / 9階建 |
| 築年月 | 築20年(2005年2月) |
| 駐車場 |
なし
|
空室確認、見学、詳細を知りたい方はこちら!
お電話の際は「連合隊の物件」とお伝えください。
情報掲載期限:あと9日(更新日 2025/11/25)
- 物件写真・概要
- 周辺地図
-
空室確認、見学、詳細を知りたい方はこちら!
おすすめポイント
- 複数路線利用可
- 幹線道路沿い
- 敷金・礼金0円
- 出店するなら…この業種がおすすめ!
- 飲食全般(重飲食含む)

- 喫茶・カフェ(軽飲食)

- バー・クラブ・スナック

- 小売・物販

- 美容・健康・介護

- 医療

- 教育・スクール

- 事務所

- アミューズメント

交通色がついているアイコンをクリックすると、本物件までの道順を見ることができます。
- 赤坂駅福岡市営地下鉄空港線徒歩6分(約432m)
- 天神駅福岡市営地下鉄空港線徒歩7分(約545m)
- 西鉄福岡(天神)駅西鉄天神大牟田線徒歩10分(約727m)
- 天神南駅福岡市営地下鉄七隈線徒歩13分(約1.1km)
- 中洲川端駅福岡市営地下鉄箱崎線、福岡市営地下鉄空港線徒歩17分(約1.4km)
物件概要
所在階/建物の階建 8階(802) / 地上9階建 主要採光面 構造 鉄骨造 間取り その他その他 契約期間 2年間 権利金 住宅保険 出店推奨業種 事務所 出店不可業種 引渡し 2026年5月初旬 管理人 取引態様 仲介 物件No 設備・特徴 - 複数路線利用可
- 幹線道路沿い
- エレベーター
備考 主な周辺施設色がついているアイコンをクリックすると、本物件までの道順を見ることができます。
-

この物件の担当者 岩手雅裕(いわてまさひろ)
初めまして、岩手と申します。 テナントのことに関するご質問やご相談がございましたら、お気軽にお問い合わせください。 ご希望のご条件に沿った物件探しを、精一杯サポート頂きます。 よろしくお願い致します。
ホームページはこちら国土交通大臣 (3) 第8462号
(株)ハウスサポート
※連合隊は物件情報の精度向上に努めています:「物件情報に誤りがある」「成約済みである」などお気付きの点がございましたらこちらよりご連絡ください。
写真枚数:7枚
店舗・事務所・居抜き物件のことはハウスサポートへ。福岡県内8店舗【アパマンショップ加盟店です】
不動産業界15年以上の豊富な知識を持ったスタッフがご希望の事業用物件探しをサポートさせて頂きます。ネットに掲載している物件以外も取扱いがありますので、お気軽にお問い合わせください。【福岡県内8店舗】