ここに注目!西鉄大橋駅まで徒歩4分の好立地! ビジネスチャンスを広げる貸店舗・貸事務所のご紹介です。 西鉄天神大牟田線「大橋」駅まで徒歩4分と、アクセスに優れた立地が魅力。幹線道路沿いに位置し、視認性も良好です。周辺にはコンビニや銀行、ドラッグストア、飲食店などが揃い、従業員の皆様にも便利な環境が整っています。 広々とした専有面積139.0㎡の1階部分。エアコン完備で快適な室内空間を提供します。インターネット環境や給排水設備も整っており、すぐにでも事業をスタートできます。 医療関係や事務所利用に特におすすめです。誠に恐れ入りますが、飲食業はご遠慮いただいておりますのでご注意ください。 礼金ゼロで初期費用を抑えられます。 この機会に、大橋エリアで新たなビジネス拠点を構えませんか? 詳細はお気軽にお問い合わせください!
| 賃料・費用 |
30万円
(+管理費等 -円)
坪単価:約7,137円/坪
敷163万6,368円礼なし仲30万円
|
|---|---|
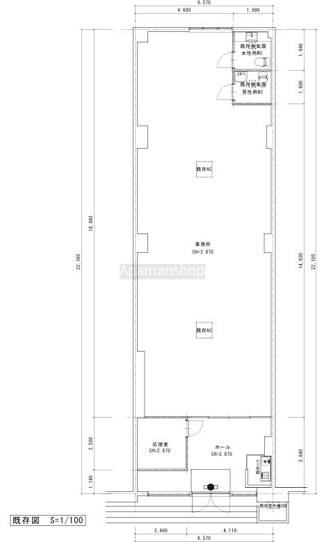
| 専有面積 | 139m² (42.04坪) |
| 住所 | 福岡県福岡市南区大橋2-2-1 |
| 交通 | 高宮駅(徒歩22分)|井尻駅(徒歩22分)|竹下駅(徒歩18分)|大橋駅(徒歩4分)道順を見る |
| 階/階建 | 1階 / 7階建 |
| 築年月 | 築43年(1982年4月) |
| 駐車場 |
なし
|
空室確認、見学、詳細を知りたい方はこちら!
お電話の際は「連合隊の物件」とお伝えください。
情報掲載期限:あと26日(更新日 2025/12/15)
- 物件写真・概要
- 周辺地図
-
空室確認、見学、詳細を知りたい方はこちら!
おすすめポイント
- 即入居可
- 駅徒歩5分以内
- 複数路線利用可
- 駅前立地
- 幹線道路沿い
- エアコン付
- 出店するなら…この業種がおすすめ!
- 飲食全般(重飲食含む)

- 喫茶・カフェ(軽飲食)

- バー・クラブ・スナック

- 小売・物販

- 美容・健康・介護

- 医療

- 教育・スクール

- 事務所

- アミューズメント

※出店不可の業種:飲食全般
交通色がついているアイコンをクリックすると、本物件までの道順を見ることができます。
物件概要
所在階/建物の階建 1階 / 地上7階建 主要採光面 構造 鉄筋コンクリート(RC)造 間取り その他その他 契約期間 2年間 権利金 住宅保険 出店推奨業種 医療、事務所 出店不可業種 飲食全般 引渡し 即時 管理人 取引態様 仲介 物件No 設備・特徴 - 複数路線利用可
- 駅前立地
- 幹線道路沿い
- エアコン付
- 給排水設備
- その他インターネット
備考 主な周辺施設色がついているアイコンをクリックすると、本物件までの道順を見ることができます。
-

この物件の担当者 岩手雅裕(いわてまさひろ)
初めまして、岩手と申します。 テナントのことに関するご質問やご相談がございましたら、お気軽にお問い合わせください。 ご希望のご条件に沿った物件探しを、精一杯サポート頂きます。 よろしくお願い致します。
ホームページはこちら国土交通大臣 (3) 第8462号
(株)ハウスサポート
※連合隊は物件情報の精度向上に努めています:「物件情報に誤りがある」「成約済みである」などお気付きの点がございましたらこちらよりご連絡ください。
写真枚数:16枚
店舗・事務所・居抜き物件のことはハウスサポートへ。福岡県内8店舗【アパマンショップ加盟店です】
不動産業界15年以上の豊富な知識を持ったスタッフがご希望の事業用物件探しをサポートさせて頂きます。ネットに掲載している物件以外も取扱いがありますので、お気軽にお問い合わせください。【福岡県内8店舗】