ここに注目!福岡市南区横手1丁目に位置する当物件は、貴社のビジネスを大きく飛躍させる貸店舗・貸事務所です。 広々とした専有面積1024.73㎡を誇り、美容・健康・介護施設や大規模な事務所利用にゆとりのある空間を提供します。西鉄天神大牟田線「井尻駅」徒歩14分、JR鹿児島本線「笹原駅」も利用可能な複数路線アクセスで、ビジネスの拠点として利便性の高い立地。幹線道路沿いに面し、視認性も良好です。 周辺にはコンビニや飲食店、病院、短期大学などが充実しており、従業員の皆様にも快適な環境です。 事業運営に嬉しい礼金ゼロ!さらに、敷地内駐車場25台が賃料に含まれており、お客様や従業員様の駐車スペースに困ることもありません。エアコン、個別空調、給排水設備も完備しており、すぐに事業をスタートできます。鉄筋コンクリート造のしっかりとした建物で、安心してお使いいただけます。 飲食業はご遠慮いただいておりますが、その他多様なビジネスに対応可能です。この機会に、ぜひ一度ご内覧ください。お問い合わせをお待ちしております。
この物件の契約期間は 15年間です。
定期借家物件は、賃貸借契約期間満了後、原則として契約の更新ができない物件です。再契約の可否については不動産会社にお問合せください。
| 賃料・費用 |
323万8,400円
(+管理費等 -円)
坪単価:約1.0万円/坪
敷1,766万4,000円礼なし仲323万8,400円
|
|---|---|
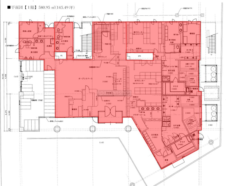
| 専有面積 | 1024.73m² (309.98坪) |
| 住所 | 福岡県福岡市南区横手1-7-1 |
| 交通 | 井尻駅(徒歩14分)|大橋駅(徒歩19分)|笹原駅(徒歩26分)道順を見る |
| 階/階建 | 1階 / 3階建 |
| 築年月 | 築34年(1991年9月) |
| 駐車場 |
あり 駐車可能台数:25台
敷地内駐車場25台有り(賃料含む) 別途、近隣駐車場有り(駐車料応相談) |
空室確認、見学、詳細を知りたい方はこちら!
お電話の際は「連合隊の物件」とお伝えください。
情報掲載期限:あと25日(更新日 2025/12/11)
- 物件写真・概要
- 周辺地図
-
空室確認、見学、詳細を知りたい方はこちら!
おすすめポイント
- 複数路線利用可
- 幹線道路沿い
- 駐車2台以上可
- エアコン付
- 出店するなら…この業種がおすすめ!
- 飲食全般(重飲食含む)

- 喫茶・カフェ(軽飲食)

- バー・クラブ・スナック

- 小売・物販

- 美容・健康・介護

- 医療

- 教育・スクール

- 事務所

- アミューズメント

※出店不可の業種:飲食全般
交通色がついているアイコンをクリックすると、本物件までの道順を見ることができます。
物件概要
所在階/建物の階建 1階 / 地上3階建 主要採光面 構造 鉄筋コンクリート(RC)造 間取り その他その他 契約期間 定期借家(15年間) 権利金 住宅保険 出店推奨業種 美容・健康・介護、事務所 出店不可業種 飲食全般 引渡し 相談 管理人 取引態様 仲介 物件No 設備・特徴 - 複数路線利用可
- 幹線道路沿い
- エアコン付
- 個別空調
- 給排水設備
備考 主な周辺施設色がついているアイコンをクリックすると、本物件までの道順を見ることができます。
-

この物件の担当者 岩手雅裕(いわてまさひろ)
初めまして、岩手と申します。 テナントのことに関するご質問やご相談がございましたら、お気軽にお問い合わせください。 ご希望のご条件に沿った物件探しを、精一杯サポート頂きます。 よろしくお願い致します。
ホームページはこちら国土交通大臣 (3) 第8462号
(株)ハウスサポート
※連合隊は物件情報の精度向上に努めています:「物件情報に誤りがある」「成約済みである」などお気付きの点がございましたらこちらよりご連絡ください。
写真枚数:9枚
店舗・事務所・居抜き物件のことはハウスサポートへ。福岡県内8店舗【アパマンショップ加盟店です】
不動産業界15年以上の豊富な知識を持ったスタッフがご希望の事業用物件探しをサポートさせて頂きます。ネットに掲載している物件以外も取扱いがありますので、お気軽にお問い合わせください。【福岡県内8店舗】