ここに注目!福岡県春日市須玖南に、新たなビジネスチャンスを広げる貸店舗・事務所が誕生しました!幹線道路沿いに位置し、高い視認性が魅力です。 周辺にはドラッグストアや銀行、郵便局、コンビニ、ホームセンターなどが徒歩圏内に充実。顧客にとっても、働く方にとっても利便性の高い環境が整っています。 広々とした専有面積37.51㎡(約11.3坪)のスケルトン物件で、内装は自由自在。お客様の理想とする空間を創造できます。給排水設備も完備しており、美容室、ネイルサロン、介護施設、物販店、または事務所など、幅広い業種に対応可能です。 さらに、店舗前には嬉しい無料駐車場1台分が付帯。初期費用を抑えて開業したい方に嬉しい礼金ゼロの条件です。 この機会に、理想のビジネス拠点を見つけませんか?まずはお気軽にお問い合わせください!
| 賃料・費用 |
11万円
(+管理費等 -円)
坪単価:約9,701円/坪
敷60万円礼なし仲11万円
|
|---|---|
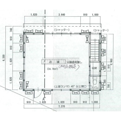
| 専有面積 | 37.51m² (11.34坪) |
| 住所 | 福岡県春日市須玖南3-16-2 |
| 交通 | 南福岡駅(徒歩23分)|雑餉隈駅(徒歩28分)道順を見る |
| 階/階建 | 1階 / 2階建 |
| 築年月 | 築36年(1989年3月) |
| 駐車場 |
あり 駐車可能台数:1台
|
空室確認、見学、詳細を知りたい方はこちら!
お電話の際は「連合隊の物件」とお伝えください。
情報掲載期限:あと15日(更新日 2025/12/11)
- 物件写真・概要
- 周辺地図
-
空室確認、見学、詳細を知りたい方はこちら!
おすすめポイント
- 複数路線利用可
- 幹線道路沿い
- 駐車場あり
- スケルトン
- 出店するなら…この業種がおすすめ!
- 飲食全般(重飲食含む)

- 喫茶・カフェ(軽飲食)

- バー・クラブ・スナック

- 小売・物販

- 美容・健康・介護

- 医療

- 教育・スクール

- 事務所

- アミューズメント

交通色がついているアイコンをクリックすると、本物件までの道順を見ることができます。
物件概要
所在階/建物の階建 1階 / 地上2階建 主要採光面 構造 木造 間取り その他その他 契約期間 3年間 権利金 住宅保険 出店推奨業種 小売・物販、美容・健康・介護、事務所 出店不可業種 引渡し 相談 管理人 取引態様 仲介 物件No 設備・特徴 - 複数路線利用可
- 幹線道路沿い
- 給排水設備
- スケルトン
備考 主な周辺施設色がついているアイコンをクリックすると、本物件までの道順を見ることができます。
-

この物件の担当者 岩手雅裕(いわてまさひろ)
初めまして、岩手と申します。 テナントのことに関するご質問やご相談がございましたら、お気軽にお問い合わせください。 ご希望のご条件に沿った物件探しを、精一杯サポート頂きます。 よろしくお願い致します。
ホームページはこちら国土交通大臣 (3) 第8462号
(株)ハウスサポート
※連合隊は物件情報の精度向上に努めています:「物件情報に誤りがある」「成約済みである」などお気付きの点がございましたらこちらよりご連絡ください。
写真枚数:8枚
店舗・事務所・居抜き物件のことはハウスサポートへ。福岡県内8店舗【アパマンショップ加盟店です】
不動産業界15年以上の豊富な知識を持ったスタッフがご希望の事業用物件探しをサポートさせて頂きます。ネットに掲載している物件以外も取扱いがありますので、お気軽にお問い合わせください。【福岡県内8店舗】