ここに注目!中洲の中心でビジネスを始めるチャンス!3階、貸店舗のご紹介です。 福岡市営地下鉄箱崎線・空港線「中洲川端」駅まで徒歩4分とアクセス抜群!複数路線が利用でき、集客力も期待できる好立地です。 広々とした51.21㎡の空間は、飲食全般(重飲食もご相談可能)、喫茶・カフェ、または事務所としてもご利用いただけます。新規事業や移転をお考えの方にぴったりの、まだ誰も使用していない「未使用物件」です! 初期費用を抑えたい方にも朗報!礼金ゼロでのご契約が可能です。ランニング費用として看板使用料22,000円(税込)が別途必要となりますが、敷金のみで開業しやすい条件です。 周辺にはコンビニや飲食店が充実しており、ビジネスをサポートする環境も整っています。 この機会に、理想のビジネス空間を手に入れませんか?まずはお気軽にお問い合わせください!
この物件の契約期間は 10年間です。
定期借家物件は、賃貸借契約期間満了後、原則として契約の更新ができない物件です。再契約の可否については不動産会社にお問合せください。
| 賃料・費用 |
40万8,936円
(+管理費等 -円)
坪単価:約2.6万円/坪
敷185万8,800円礼なし仲40万8,936円
|
|---|---|
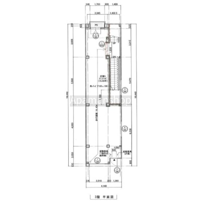
| 専有面積 | 51.21m² (15.49坪) |
| 住所 | 福岡県福岡市博多区中洲5-3-17 |
| 交通 | 櫛田神社前駅(徒歩10分)|天神南駅(徒歩11分)|天神駅(徒歩9分)|中洲川端駅(徒歩4分)道順を見る |
| 階/階建 | 3階 / 3階建 |
| 築年月 | 新築(2025年6月) |
| 駐車場 |
なし
|
空室確認、見学、詳細を知りたい方はこちら!
お電話の際は「連合隊の物件」とお伝えください。
情報掲載期限:あと26日(更新日 2026/1/24)
- 物件写真・概要
- 周辺地図
-
空室確認、見学、詳細を知りたい方はこちら!
おすすめポイント
- 駅徒歩5分以内
- 複数路線利用可
- 出店するなら…この業種がおすすめ!
- 飲食全般(重飲食含む)

- 喫茶・カフェ(軽飲食)

- バー・クラブ・スナック

- 小売・物販

- 美容・健康・介護

- 医療

- 教育・スクール

- 事務所

- アミューズメント

交通色がついているアイコンをクリックすると、本物件までの道順を見ることができます。
- 櫛田神社前駅福岡市営地下鉄七隈線徒歩10分(約749m)
- 天神南駅福岡市営地下鉄七隈線徒歩11分(約877m)
- 天神駅福岡市営地下鉄空港線徒歩9分(約657m)
- 中洲川端駅福岡市営地下鉄箱崎線、福岡市営地下鉄空港線徒歩4分(約277m)
物件概要
所在階/建物の階建 3階(3階) / 地上3階建 主要採光面 構造 鉄筋コンクリート(RC)造 間取り その他その他 契約期間 定期借家(10年間) 権利金 住宅保険 出店推奨業種 飲食全般(重飲食含む)、喫茶・カフェ(軽飲食)、事務所 出店不可業種 その他費用 毎月の費用 - 看板使用料:2万2,000円
引渡し 相談 管理人 取引態様 仲介 物件No 設備・特徴 - 複数路線利用可
備考 主な周辺施設色がついているアイコンをクリックすると、本物件までの道順を見ることができます。
-

この物件の担当者 岩手雅裕(いわてまさひろ)
初めまして、岩手と申します。 テナントのことに関するご質問やご相談がございましたら、お気軽にお問い合わせください。 ご希望のご条件に沿った物件探しを、精一杯サポート頂きます。 よろしくお願い致します。
ホームページはこちら国土交通大臣 (3) 第8462号
(株)ハウスサポート
※連合隊は物件情報の精度向上に努めています:「物件情報に誤りがある」「成約済みである」などお気付きの点がございましたらこちらよりご連絡ください。
写真枚数:2枚
店舗・事務所・居抜き物件のことはハウスサポートへ。福岡県内8店舗【アパマンショップ加盟店です】
不動産業界15年以上の豊富な知識を持ったスタッフがご希望の事業用物件探しをサポートさせて頂きます。ネットに掲載している物件以外も取扱いがありますので、お気軽にお問い合わせください。【福岡県内8店舗】