ヴィラージュ博多駅前オフィス
ここに注目!OAフロア、タイルカーペット、W1200 IHコンロ付きキッチン、都市ガス給湯器、ウォシュレット、エアコン2基、各階防犯カメラ、エントランス大型防犯モニター設置、エントランスシャンデリア設置、バルコニー・共用廊下ノンスリップシート、機械警備(にしけい)、エレベーター 事務机、会議用テーブル、椅子、パーテーション、キャビネットサービス設置
| 賃料・費用 |
33万2,200円
(+管理費等 3万3,000円)
坪単価:約1.5万円/坪
敷90万6,000円礼なし仲33万2,200円
|
|---|---|
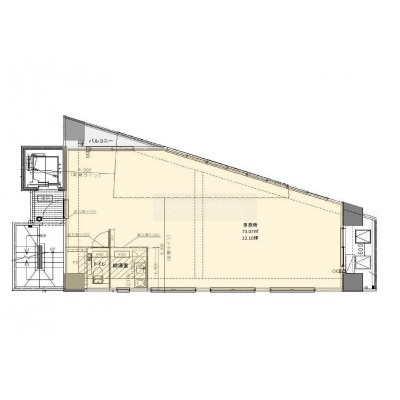
| 専有面積 | 73.07m² (22.1坪) |
| 住所 | 福岡県福岡市博多区博多駅前4-37-2 |
| 交通 | 博多駅(徒歩14分)|東比恵駅(徒歩20分)|渡辺通駅(徒歩24分)|西鉄平尾駅(徒歩25分) |
| 階/階建 | 4階 / 7階建 |
| 築年月 | 築5年(2020年1月) |
| 駐車場 |
近隣月極駐車場 (1万4,437円/台) 駐車可能台数:1台
駐車場は東領公園前駐車場74番 |
空室確認、見学、詳細を知りたい方はこちら!
お電話の際は「連合隊の物件」とお伝えください。
情報掲載期限:あと24日(更新日 2025/12/18)
- 物件写真・概要
- 周辺地図
-
空室確認、見学、詳細を知りたい方はこちら!
おすすめポイント
- 複数路線利用可
- エアコン付
- OAフロア
- 24時間セキュリティー
交通色がついているアイコンをクリックすると、本物件までの道順を見ることができます。
- 博多駅九州新幹線、JR博多南線、福北ゆたか線、福岡市営地下鉄空港線、福岡市営地下鉄七隈線、山陽新幹線、JR鹿児島本線徒歩14分(約1.1km)
- 東比恵駅福岡市営地下鉄空港線徒歩20分(約1.6km)
- 渡辺通駅福岡市営地下鉄七隈線徒歩24分(約1.9km)
- 西鉄平尾駅西鉄天神大牟田線徒歩25分(約2km)
物件概要
所在階/建物の階建 4階(4階) / 地上7階建 主要採光面 南東 構造 鉄筋コンクリート(RC)造 間取り その他その他 バルコニー あり契約期間 3年間 権利金 住宅保険 その他費用 一時金 - 鍵交換料:2万2,000円
- 保証料:37万9,637円
引渡し 相談 管理人 取引態様 仲介 物件No 設備・特徴 - 複数路線利用可
- エレベーター
- OAフロア
- ガス設備
- 給排水設備
- エアコン付
- 24時間セキュリティー
備考 主な周辺施設色がついているアイコンをクリックすると、本物件までの道順を見ることができます。
-

この物件の担当者 岩手雅裕(いわてまさひろ)
初めまして、岩手と申します。 テナントのことに関するご質問やご相談がございましたら、お気軽にお問い合わせください。 ご希望のご条件に沿った物件探しを、精一杯サポート頂きます。 よろしくお願い致します。
ホームページはこちら国土交通大臣 (3) 第8462号
(株)ハウスサポート
※連合隊は物件情報の精度向上に努めています:「物件情報に誤りがある」「成約済みである」などお気付きの点がございましたらこちらよりご連絡ください。
写真枚数:26枚
店舗・事務所・居抜き物件のことはハウスサポートへ。福岡県内8店舗【アパマンショップ加盟店です】
不動産業界15年以上の豊富な知識を持ったスタッフがご希望の事業用物件探しをサポートさせて頂きます。ネットに掲載している物件以外も取扱いがありますので、お気軽にお問い合わせください。【福岡県内8店舗】