ここに注目!お気軽にお問い合わせください!
| 賃料・費用 |
37万9,500円
(+管理費等 -円)
坪単価:約1.3万円/坪
敷172万5,000円仲37万9,500円
|
|---|---|
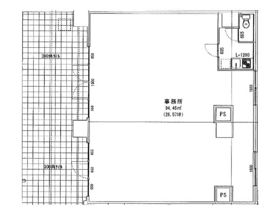
| 専有面積 | 94.45m² (28.57坪) |
| 住所 | 福岡県福岡市南区大橋3 31-20 |
| 交通 | 大橋駅(徒歩12分)道順を見る |
| 階/階建 | 1階 / 11階建 |
| 築年月 | 築1年未満(2026年2月) |
| 駐車場 |
あり (1万3,200円/台)
|
空室確認、見学、詳細を知りたい方はこちら!
お電話の際は「連合隊の物件」とお伝えください。
情報掲載期限:あと30日(更新日 2026/4/16)
- 物件写真・概要
- 周辺地図
-
空室確認、見学、詳細を知りたい方はこちら!
おすすめポイント
- 駐車場あり
- エアコン付
交通色がついているアイコンをクリックすると、本物件までの道順を見ることができます。
物件概要
所在階/建物の階建 1階 / 地上11階建 主要採光面 構造 鉄筋コンクリート(RC)造 間取り 契約期間 2年間 権利金 住宅保険 出店推奨業種 出店不可業種 その他費用 毎月の費用 - 町費:300円
引渡し 相談 管理人 取引態様 仲介 物件No BT604027 設備・特徴 - エレベーター
- エアコン付
備考 主な周辺施設色がついているアイコンをクリックすると、本物件までの道順を見ることができます。
-
ホームページはこちら
福岡県知事 (1) 第19781号
(株)田中屋不動産- 加入団体
- (公社)福岡県宅地建物取引業協会
- 保証協会
- (公社)全国宅地建物取引業保証協会
- 公正取引協議会
- (一社)九州不動産公正取引協議会
※連合隊は物件情報の精度向上に努めています:「物件情報に誤りがある」「成約済みである」などお気付きの点がございましたらこちらよりご連絡ください。
写真枚数:7枚
福岡市エリアで事業用物件をお探しの方の強力なパートナー!テナントに特化した弊社では物件のご紹介はもちろん、開業に関わる手続きや店舗作り、繁盛店視察等様々な場面でサポートできます♪是非一度お問合せ下さい