ここに注目!お気軽にお問い合わせください!
この物件の契約期間は 3年間です。
定期借家物件は、賃貸借契約期間満了後、原則として契約の更新ができない物件です。再契約の可否については不動産会社にお問合せください。
| 賃料・費用 |
50万6,880円
(+管理費等 3万3,792円)
坪単価:約3.3万円/坪
敷92万1,600円仲50万6,880円
|
|---|---|
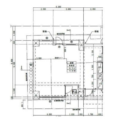
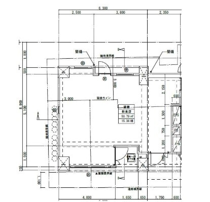
| 専有面積 | 50.79m² (15.36坪) |
| 住所 | 福岡県福岡市中央区薬院2丁目 1-5 |
| 交通 | 薬院大通駅(徒歩1分)|薬院駅(徒歩7分)道順を見る |
| 階/階建 | 路面 / 9階建 |
| 築年月 | 築2年(2024年4月) |
| 駐車場 |
なし
|
空室確認、見学、詳細を知りたい方はこちら!
お電話の際は「連合隊の物件」とお伝えください。
情報掲載期限:あと21日(更新日 2026/4/7)
- 物件写真・概要
- 周辺地図
-
空室確認、見学、詳細を知りたい方はこちら!
おすすめポイント
- 路面店
- 駅徒歩1分以内
- 複数路線利用可
交通色がついているアイコンをクリックすると、本物件までの道順を見ることができます。
物件概要
所在階/建物の階建 1階 / 地上9階建 主要採光面 構造 鉄筋コンクリート(RC)造 間取り 契約期間 定期借家(3年間) 権利金 住宅保険 出店推奨業種 出店不可業種 引渡し 相談 管理人 取引態様 仲介 物件No 設備・特徴 - 路面店
- 複数路線利用可
備考 ※再契約事務手数料:55,000円 ※短期解約違約金:1年未満での解約は賃料+共益費1ヶ月分 ※インフォメーションボード代13,200円 ※内装図面要提出 ※福岡市福祉のまちづくり条例事前協議書要提出 主な周辺施設色がついているアイコンをクリックすると、本物件までの道順を見ることができます。
-
ホームページはこちら
福岡県知事 (1) 第19781号
(株)田中屋不動産- 加入団体
- (公社)福岡県宅地建物取引業協会
- 保証協会
- (公社)全国宅地建物取引業保証協会
- 公正取引協議会
- (一社)九州不動産公正取引協議会
※連合隊は物件情報の精度向上に努めています:「物件情報に誤りがある」「成約済みである」などお気付きの点がございましたらこちらよりご連絡ください。
写真枚数:9枚
福岡市エリアで事業用物件をお探しの方の強力なパートナー!テナントに特化した弊社では物件のご紹介はもちろん、開業に関わる手続きや店舗作り、繁盛店視察等様々な場面でサポートできます♪是非一度お問合せ下さい