ここに注目!那の津通り沿いの築浅物件。OAフロア!!ワンフロア1社占有です!
| 賃料・費用 |
38万3,856円
(+管理費等 4万7,982円)
坪単価:約1.3万円/坪
敷104万6,880円仲38万3,856円
|
|---|---|
| 専有面積 | 96.13m² (29.07坪) |
| 住所 | 福岡県福岡市中央区舞鶴3丁目 7-15 |
| 交通 | 天神駅(徒歩16分)|赤坂駅(徒歩7分)道順を見る |
| 階/階建 | 6階 / 8階建 |
| 築年月 | 築7年(2019年2月) |
| 駐車場 |
なし
|
空室確認、見学、詳細を知りたい方はこちら!
お電話の際は「連合隊の物件」とお伝えください。
情報掲載期限:あと24日(更新日 2026/2/9)
- 物件写真・概要
- 周辺地図
-
空室確認、見学、詳細を知りたい方はこちら!
おすすめポイント
- 複数路線利用可
- 男女別トイレ
- エアコン付
- 24時間セキュリティー
交通色がついているアイコンをクリックすると、本物件までの道順を見ることができます。
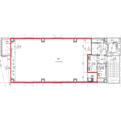
物件概要
所在階/建物の階建 6階 / 地上8階建 主要採光面 構造 鉄骨造 間取り 契約期間 2年間 権利金 住宅保険 出店推奨業種 出店不可業種 引渡し 相談 管理人 取引態様 仲介 物件No 設備・特徴 - エレベーター
- 複数路線利用可
- エアコン付
- 24時間セキュリティー
- 男女別トイレ
備考 前テナント(事務所)の造作があります(事務室が区分けされて使いやすいです)居住中ですが、内見可能です。造作物居抜き相談可。 主な周辺施設色がついているアイコンをクリックすると、本物件までの道順を見ることができます。
-
ホームページはこちら
福岡県知事 (1) 第19781号
(株)田中屋不動産- 加入団体
- (公社)福岡県宅地建物取引業協会
- 保証協会
- (公社)全国宅地建物取引業保証協会
- 公正取引協議会
- (一社)九州不動産公正取引協議会
※連合隊は物件情報の精度向上に努めています:「物件情報に誤りがある」「成約済みである」などお気付きの点がございましたらこちらよりご連絡ください。
写真枚数:6枚
福岡市エリアで事業用物件をお探しの方の強力なパートナー!テナントに特化した弊社では物件のご紹介はもちろん、開業に関わる手続きや店舗作り、繁盛店視察等様々な場面でサポートできます♪是非一度お問合せ下さい