ここに注目!お気軽にお問い合わせください!
| 賃料・費用 |
86万9,550円
(+管理費等 -円)
坪単価:約3.3万円/坪
敷なし礼237万1,500円仲86万9,550円
|
|---|---|
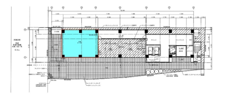
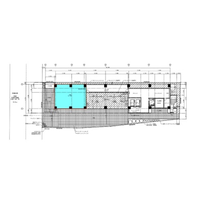
| 専有面積 | 87.13m² (26.35坪) |
| 住所 | 福岡県福岡市中央区今泉2丁目 4-30 |
| 交通 | 薬院大通駅(徒歩8分)|西鉄福岡(天神)駅(徒歩9分)|天神駅(徒歩13分)|薬院駅(徒歩11分)道順を見る |
| 階/階建 | 路面 / 8階建 |
| 築年月 | 建築中(2026年9月完成予定) |
| 駐車場 |
なし
|
空室確認、見学、詳細を知りたい方はこちら!
お電話の際は「連合隊の物件」とお伝えください。
情報掲載期限:あと29日(更新日 2026/3/31)
- 物件写真・概要
- 周辺地図
-
空室確認、見学、詳細を知りたい方はこちら!
おすすめポイント
- 路面店
- スケルトン
交通色がついているアイコンをクリックすると、本物件までの道順を見ることができます。
- 薬院大通駅福岡市営地下鉄七隈線徒歩8分(約579m)
- 西鉄福岡(天神)駅西鉄天神大牟田線徒歩9分(約715m)
- 天神駅福岡市営地下鉄空港線徒歩13分(約1.1km)
- 薬院駅西鉄天神大牟田線、福岡市営地下鉄七隈線徒歩11分(約844m)
物件概要
所在階/建物の階建 1階 / 地上8階建 主要採光面 構造 鉄筋コンクリート(RC)造 間取り 契約期間 3年間 権利金 住宅保険 出店推奨業種 出店不可業種 引渡し 相談 管理人 取引態様 仲介 物件No 設備・特徴 - 路面店
- スケルトン
備考 主な周辺施設色がついているアイコンをクリックすると、本物件までの道順を見ることができます。
-
ホームページはこちら
福岡県知事 (1) 第19781号
(株)田中屋不動産- 加入団体
- (公社)福岡県宅地建物取引業協会
- 保証協会
- (公社)全国宅地建物取引業保証協会
- 公正取引協議会
- (一社)九州不動産公正取引協議会
※連合隊は物件情報の精度向上に努めています:「物件情報に誤りがある」「成約済みである」などお気付きの点がございましたらこちらよりご連絡ください。
写真枚数:3枚
福岡市エリアで事業用物件をお探しの方の強力なパートナー!テナントに特化した弊社では物件のご紹介はもちろん、開業に関わる手続きや店舗作り、繁盛店視察等様々な場面でサポートできます♪是非一度お問合せ下さい