第二博多偕成ビル、10階
ここに注目!お気軽にお問い合わせください!
| 賃料・費用 |
155万5,554円
(+管理費等 27万9,292円)
坪単価:約2.1万円/坪
敷1,696万9,680円仲155万5,554円
|
|---|---|
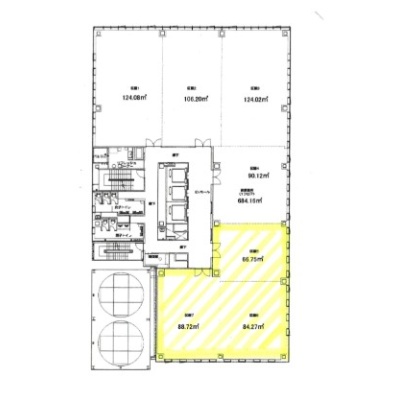
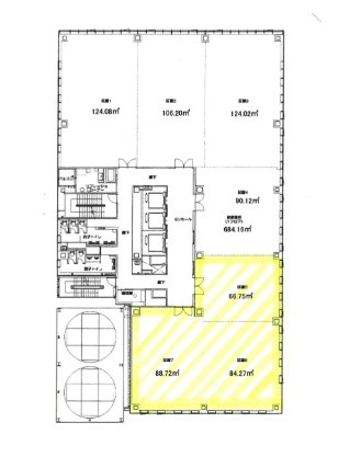
| 専有面積 | 239.74m² (72.52坪) |
| 住所 | 福岡県福岡市博多区博多駅南1丁目 10-4 |
| 交通 | 博多駅(徒歩7分)道順を見る |
| 階/階建 | 10階 / 10階建 |
| 築年月 | 築13年(2012年8月) |
| 駐車場 |
なし
|
空室確認、見学、詳細を知りたい方はこちら!
お電話の際は「連合隊の物件」とお伝えください。
新着 情報掲載期限:あと27日(更新日 2025/12/6)
- 物件写真・概要
- 周辺地図
-
空室確認、見学、詳細を知りたい方はこちら!
おすすめポイント
- 複数路線利用可
交通色がついているアイコンをクリックすると、本物件までの道順を見ることができます。
物件概要
所在階/建物の階建 10階 / 地上10階建 主要採光面 構造 鉄骨造 間取り 契約期間 2年間 権利金 住宅保険 引渡し 相談 管理人 取引態様 仲介 物件No BT511142 設備・特徴 - 複数路線利用可
- エレベーター
備考 主な周辺施設色がついているアイコンをクリックすると、本物件までの道順を見ることができます。
-
ホームページはこちら
福岡県知事 (1) 第19781号
(株)田中屋不動産- 加入団体
- (公社)福岡県宅地建物取引業協会
- 保証協会
- (公社)全国宅地建物取引業保証協会
- 公正取引協議会
- (一社)九州不動産公正取引協議会
※連合隊は物件情報の精度向上に努めています:「物件情報に誤りがある」「成約済みである」などお気付きの点がございましたらこちらよりご連絡ください。
写真枚数:2枚
福岡市エリアで事業用物件をお探しの方の強力なパートナー!テナントに特化した弊社では物件のご紹介はもちろん、開業に関わる手続きや店舗作り、繁盛店視察等様々な場面でサポートできます♪是非一度お問合せ下さい