とわたビル
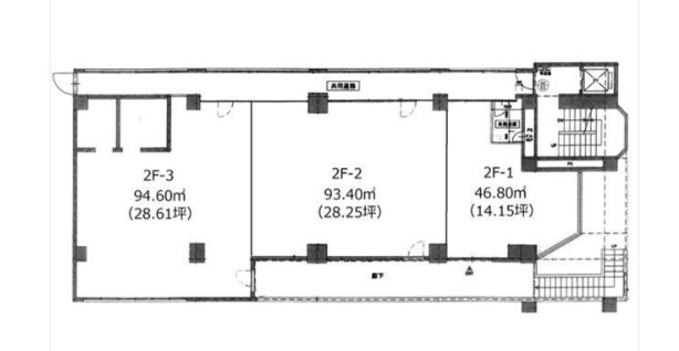
ここに注目!西鉄天神大牟田線「大橋」駅まで徒歩2分! 駅チカの好立地は、お客様のアクセスはもちろん、従業員の通勤にも大変便利。周辺にはコンビニ、ドラッグストア、スーパー、ショッピングセンターが充実しており、ビジネスをサポートする環境が整っています。 広々とした46.8㎡の室内は、事業内容に合わせて自由にレイアウトや内装をデザインできるスケルトン物件。エレベーターも完備しており、来客される方にも快適にご利用いただけます。
この物件の契約期間は 5年間です。
定期借家物件は、賃貸借契約期間満了後、原則として契約の更新ができない物件です。再契約の可否については不動産会社にお問合せください。
| 賃料・費用 |
18万6,700円
(+管理費等 -円)
坪単価:約1.3万円/坪
敷101万8,368円仲18万6,700円
|
|---|---|
| 専有面積 | 46.8m² (14.15坪) |
| 住所 | 福岡県福岡市南区大橋1丁目 14-2 |
| 交通 | 大橋駅(徒歩2分)道順を見る |
| 階/階建 | 2階 / 6階建 |
| 築年月 | 築41年(1984年10月) |
| 駐車場 |
なし
|
空室確認、見学、詳細を知りたい方はこちら!
お電話の際は「連合隊の物件」とお伝えください。
情報掲載期限:あと24日(更新日 2026/2/9)
- 物件写真・概要
- 周辺地図
-
空室確認、見学、詳細を知りたい方はこちら!
おすすめポイント
- 駅徒歩3分以内
- スケルトン
交通色がついているアイコンをクリックすると、本物件までの道順を見ることができます。
物件概要
所在階/建物の階建 2階 / 地上6階建 主要採光面 構造 鉄筋コンクリート(RC)造 間取り 契約期間 定期借家(5年間) 権利金 なし 住宅保険 出店推奨業種 出店不可業種 引渡し 相談 管理人 取引態様 仲介 物件No BT511023 設備・特徴 - エレベーター
- スケルトン
備考 主な周辺施設色がついているアイコンをクリックすると、本物件までの道順を見ることができます。
-
ホームページはこちら
福岡県知事 (1) 第19781号
(株)田中屋不動産- 加入団体
- (公社)福岡県宅地建物取引業協会
- 保証協会
- (公社)全国宅地建物取引業保証協会
- 公正取引協議会
- (一社)九州不動産公正取引協議会
※連合隊は物件情報の精度向上に努めています:「物件情報に誤りがある」「成約済みである」などお気付きの点がございましたらこちらよりご連絡ください。
写真枚数:8枚
福岡市エリアで事業用物件をお探しの方の強力なパートナー!テナントに特化した弊社では物件のご紹介はもちろん、開業に関わる手続きや店舗作り、繁盛店視察等様々な場面でサポートできます♪是非一度お問合せ下さい