サンショウレジデンス西新
ここに注目!福岡市営地下鉄空港線「西新」駅から徒歩4分! なかにし商店街入口の交差点角地です。 賑わいを見せる西新エリアに位置し、集客力も期待できるビジネスの拠点にふさわしい立地。
この物件の契約期間は 10年間です。
定期借家物件は、賃貸借契約期間満了後、原則として契約の更新ができない物件です。再契約の可否については不動産会社にお問合せください。
| 賃料・費用 |
227万7,000円
(+管理費等 -円)
坪単価:約2.5万円/坪
敷1,242万円礼なし仲227万7,000円
|
|---|---|
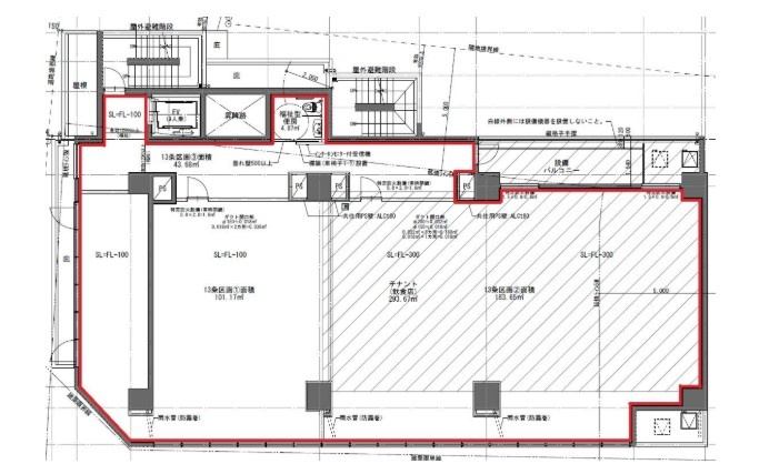
| 専有面積 | 298.54m² (90.3坪) |
| 住所 | 福岡県福岡市早良区西新5丁目 1以下未定 |
| 交通 | 西新駅(徒歩4分)|藤崎駅(徒歩17分)道順を見る |
| 階/階建 | 2階 / 11階建 |
| 築年月 | 建築中(2026年3月完成予定) |
| 駐車場 |
空室確認、見学、詳細を知りたい方はこちら!
お電話の際は「連合隊の物件」とお伝えください。
情報掲載期限:あと21日(更新日 2025/12/6)
- 物件写真・概要
- 周辺地図
-
空室確認、見学、詳細を知りたい方はこちら!
おすすめポイント
- 駅徒歩5分以内
- 商店街に面す
- スケルトン
交通色がついているアイコンをクリックすると、本物件までの道順を見ることができます。
物件概要
所在階/建物の階建 2階 / 地上11階建 主要採光面 構造 鉄筋コンクリート(RC)造 間取り 契約期間 定期借家(10年間) 権利金 住宅保険 出店推奨業種 出店不可業種 その他費用 毎月の費用 - 町費:300円
- 商店街組合費:3,000円
引渡し 相談(予定 2026年04月上旬) 管理人 取引態様 仲介 物件No 設備・特徴 - スケルトン
- 商店街に面す
備考 -
ホームページはこちら
福岡県知事 (1) 第19781号
(株)田中屋不動産- 加入団体
- (公社)福岡県宅地建物取引業協会
- 保証協会
- (公社)全国宅地建物取引業保証協会
- 公正取引協議会
- (一社)九州不動産公正取引協議会
※連合隊は物件情報の精度向上に努めています:「物件情報に誤りがある」「成約済みである」などお気付きの点がございましたらこちらよりご連絡ください。
写真枚数:2枚
福岡市エリアで事業用物件をお探しの方の強力なパートナー!テナントに特化した弊社では物件のご紹介はもちろん、開業に関わる手続きや店舗作り、繁盛店視察等様々な場面でサポートできます♪是非一度お問合せ下さい